Annuncio inserito da:   Gescom

vendita - porzione di casa - Via Roma , Soave (VR)

Zona: non indicata
Rif. A2538/25BIS
232.500€
  • 297  mq
  • locali
  • C. E. Non indicata 
vedi sulla mappa

dettagli

Inserito: 1 mese fa
  • interno immobile
    • Tipo: porzione di casa
    • Stato: buono/abitabile
    • Superficie: 297 mq
    • Locali: 9
    • Bagni: 0
    • Tipo cucina: abitabile
    • Riscaldamento: autonomo
    • Tipo riscaldamento: a metano
    • Clase energetica: non indicato
    • IPE: 0 kwh/ annui
  • esterno immobile
    • Piano: non indicato
    • Totale Piani: Non indicato
    • Livelli: non indicato
    • Balconi: non indicato
    • Box: non indicato
    • Giardino: non indicato
    • Pannelli solari: non indicato
  • altre informazioni
    • Categoria: Residenziale
    • Anno construzione: non indicato
    • Tipo proprietà: non indicato
    • Stato al rogito: non indicato
    • Arredato: non indicato
    • Spese cond./gen.: n.i. /anno
    • Permuta: non indicato
caratteristiche
  • presente
  • non presente
  • info mancanti
  • ascensore
  • terrazzo
  • condizionatore
  • zanzariere
  • cantina
  • soffitta
  • piscina interrata
  • imp. satellitare
  • cablato/lan
  • imp. allarme
  • adatto diversamente abili

descrizione

NUOVA PROPOSTA

IMMOBILE DISPONIBILE

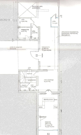
Edificio terra-cielo a Soave (VR) in via Roma composto da negozio al piano terra e abitazione ai tre piani superiori, con annessa piccola corte esclusiva sul retro.
Porzione negozio situata al piano terra per la superficie commerciale 40 metri quadri.
Porzione laboratorio panificazione di 122,00 metri quadri, corte di 21 metri quadri.
Abitazione ai tre piani superiori di 295,00 metri quadri.

Per te la possibilità di avere un preventivo per il mutuo a condizioni vantaggiose con i nostri partner.
Ulteriori dettagli, foto degli interni, planimetrie e altre info, se disponibili, saranno consultabili previo appuntamento nella sede di VERONA con LUCIANO che inoltre ti informerà sulle possibilità di aggiudicarti questo affare.
L'immobile pubblicato al momento è sottoposto a procedura di vendita legale; Gescom srl è specializzata nella ricerca e pianificazione di investimenti immobiliari secondo innovative strategie di acquisto. Contattaci subito potrai valutare assieme a un nostro tecnico canali distinti di acquisto dell'immobile, procedura di vendita diretta senza ricorrere all'asta (d.lgs. 149/2022) e ancora stralcio immobiliare. Le informazioni sopra riportate non sostituiscono l'avviso pubblicato dal Tribunale competente ne' l'integrale gestione da parte del delegato designato. Il testo e le specifiche indicate nella presente pagina sono generate automaticamente attraverso l'utilizzo di software e/o da A. I., Gescom srl invita a verificare le formazioni e i materiali multimediali sui canali ufficiali, declinando fin d'ora ogni responsabilità su eventuali errori o incongruenze.
Gescom Italia srl leader negli stralci immobiliari e nella consulenza tecnico legale, non si occupa di attività di intermediazione imm. di cui alla legge 39/89.
Cl. energ. da verificare.
Le foto pubblicate nel presente annuncio sono indicative e non esaustive della tipologia, qualità, consistenza e indicazione geografica dell'immobile.

CLASSE ENERGETICA: A

vedi l'annuncio sulla mappa

Indirizzo di questo annuncio: Via Roma , Soave (VR)

annunci simili per te

Rif. annuncio A2538/25BIS
nome agenzia

L'utente non ha inserito alcuna descizione


Tel: click per vedere