Annuncio inserito da:   IMMOBILIARE SUCCITTI

vendita - terreno edificabile - Via Radmilli, Tortoreto (TE)

Zona: non indicata
Rif. 0124
200.000€
  • 1508  mq
vedi sulla mappa

dettagli

Inserito: 3 anni e 9 mesi fa
  • caratteristiche
    • Tipo: edificabile
    • Destinazione: non indicata
    • Indice edificabilità: non indicato
    • Rapporto di copertura: non indicato
    • Distanza minima dai confini: non indicato
    • Distanza minima dalla strada: non indicato
    • Altezza massima: non indicato
  • altre informazioni
    • Categoria: Terreno
    • Tipo proprietà: non indicato

descrizione

TERRENO VISTA MARE IN VENDITA A TORTORETO (TE).

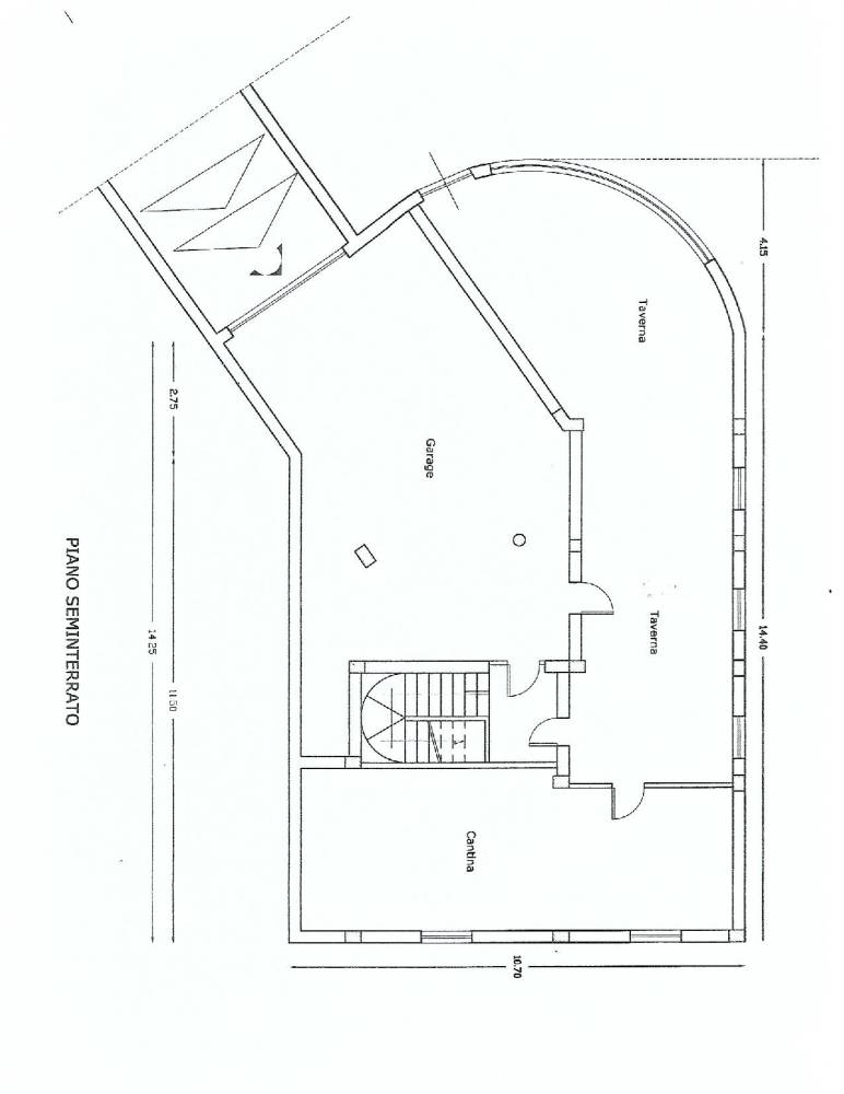
Sulla collina di Tortoreto si propone la vendita di un terreno edificabile, completamente vista mare, della superficie complessiva di mq 1500 circa. Il terreno dispone di 4 lati liberi e su di esso è possibile realizzare circa 220 mq circa di superficie abitale.

Allo stato attuale è stato realizzato il cemento armato dell'intero piano cantinato.

Trattasi di un'ottima opportunità per la realizzazione di una villa singola o bifamigliare per la posizione del terreno e per la fantastica vista che offre.

Per informazioni e visite contattare IMMOBILIARE SUCCITTI - Via G. Carducci n. 155 - Tortoreto (TE) - Tel. +39.0861.777443 - +39.331.1301383 - info@immobiliaresuccitti.it

Visitate il nostro sito internet ...

vedi l'annuncio sulla mappa

Indirizzo di questo annuncio: Via Radmilli , Tortoreto (TE)

annunci simili per te

Rif. annuncio 0124
nome agenzia

IMMOBILIARE SUCCITTI

contatta l'utente

L'utente non ha inserito alcuna descizione


Ci trovi qui:
Via Nazionale Adriatica, 45, 64018 Tortoreto (TE)

Tel: click per vedere | Mail: click per vedere | Web: www.immobiliaresuccitti.it