Annuncio inserito da:   22REB

vendita - palazzo/stabile - Via Giuseppe Garibaldi , Oderzo (TV)

Zona: non indicata
Rif. GM2597/25
900.000€
  • 829  mq
  • 35  locali
  • C. E. Non indicata 
vedi sulla mappa

dettagli

Inserito: meno di 1 giorno
  • interno immobile
    • Tipo: palazzo/stabile
    • Stato: non indicato
    • Superficie: 829 mq
    • Locali: 35
    • Bagni: 0
    • Tipo cucina: non indicato
    • Riscaldamento: non indicato
    • Tipo riscaldamento: non indicato
    • Clase energetica: non indicato
    • IPE: 0 kwh/ annui
  • esterno immobile
    • Piano: non indicato
    • Totale Piani: Non indicato
    • Livelli: non indicato
    • Balconi: non indicato
    • Box: non indicato
    • Giardino: non indicato
    • Pannelli solari: non indicato
  • altre informazioni
    • Categoria: Residenziale
    • Anno construzione: non indicato
    • Tipo proprietà: non indicato
    • Stato al rogito: non indicato
    • Arredato: non indicato
    • Spese cond./gen.: n.i. /anno
    • Permuta: non indicato
caratteristiche
  • presente
  • non presente
  • info mancanti
  • ascensore
  • terrazzo
  • condizionatore
  • zanzariere
  • cantina
  • soffitta
  • piscina interrata
  • imp. satellitare
  • cablato/lan
  • imp. allarme
  • adatto diversamente abili

descrizione

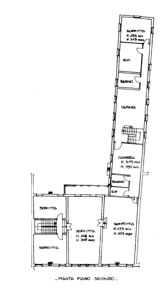
Palazzo detto Ex Pretorio - Palazzo d'epoca con barchessa e giardino interno ubicato nel centro storico del Comune di Oderzo (TV) in via Giuseppe Garibaldi. Dall'androne si accede all'ufficio al piano terra del corpo centrale composto da ufficio, due locali ad uso archivio, bagno ed antibagno ed all'abitazione, che si sviluppa nel corpo principale del palazzo e lungo la barchessa, ai piani terra, primo e secondo. I due appartamenti ubicati in testa alla barchessa hanno accesso autonomo attraverso l'androne. L'abitazione nel corpo centrale è composta al piano terra da un ingresso, una sala, soggiorno, bagno, locale lavanderia e guardaroba; al piano primo da salone centrale, un salotto, studio, sala da pranzo, disimpegno, una cucina, camera da letto, bagno e guardaroba; al piano secondo tre camere da letto, salotto, due bagni, tre locali adibiti a soffitta ed una loggia. Entrambi gli appartamenti nella porzione di testa della barchessa, uno al piano terra ed uno al piano primo, sono composti da un ingresso, una cucina, camera da letto e bagno.


22REB è a disposizione per valutare come la nostra esperienza potrà favorirti nel realizzare il tuo miglior investimento.

L'immobile è oggetto di vendita giudiziaria.

22REB non si occupa di attività di intermediazione imm. di cui alla legge 39/89. Per motivi di privacy la foto dell'immobile/terreno è indicativa ma non esaustiva.
CLASSE ENERGETICA: In fase di valutazione

vedi l'annuncio sulla mappa

Indirizzo di questo annuncio: Via Giuseppe Garibaldi , Oderzo (TV)

annunci simili per te

Rif. annuncio GM2597/25
nome agenzia

Il nostro obiettivo è quello di fornire un servizio completo e di alta qualità ai nostri clienti, guidandoli passo dopo passo nel processo di investimento immobiliare attraverso aste giudiziarie. Collaboriamo con esperti del settore e professionisti qualificati per garantire ai nostri clienti la massima trasparenza e sicurezza nelle transazioni. Grazie alla nostra esperienza nel settore e alla nostra presenza internazionale, in particolare il mercato europeo (Spagna e Italia in primo piano) siamo in grado di identificare le migliori opportunità di investimento immobiliare e di guidare i nostri clienti nella scelta dell'immobile più adatto alle loro esigenze e obiettivi finanziari. Siamo fiduciosi che la nostra presenza sul mercato europeo delle aste giudiziarie porterà nuove opportunità di investimento a privati e investitori professionisti, consentendo loro di accedere a immobili di qualità a prezzi vantaggiosi e di ottenere rendimenti interessanti sui loro investimenti.


Tel: click per vedere | Mail: click per vedere | Web: WWW.22REB.COM