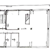
Classe energetica: G - Agenzia Immobiliare Metroquadro propone in vendita esclusiva, attico a Monte Urano centro di mq 183, piano terzo con ascensore, anno 1974, immobile e' da rivedere internamente. L' appartamento e' suddiviso su piano terzo e piano quarto collegato anche da una comoda scala interna, composto da ampio e luminoso soggiorno e studio con terrazzo di mt 16 panoramico vista monti, disimpegno notte, camera matrimoniale con bagno e doccia, camera doppia, ampio bagno con vasca, camera singola. Saliamo a piano quarto troviamo un ampio e luminoso living con camino, angolo cottura, sala da pranzo, disimpegno notte, camera matrimoniale, bagno con doccia, ripostiglio, studio. Piano terra due garage di mq 15 ciascuno.
Ottima posizione, palazzina in buono stato sito in Via Papa Giovanni XIII, a due minuti dal centro di Monte Urano, a 5 minuti dal nuovo Ospedale di Campiglione. Contattaci per visionarlo che aspetti!!
 
											L'utente non ha inserito alcuna descizione
												 Ci trovi qui:
						
						Via G. Boni n1, 63822						Porto San Giorgio (FM)
						
												Tel: click per vedere | Mail: click per vedere | Web: www.immobiliare-metroquadro.it