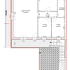
Classe energetica: A1 - EPgl,nren: 0,00 kWh/m² - Piane di Rapagnano, in tranquilla zona residenziale, appartamento di nuova costruzione con ingresso indipendente delle dimensioni di circa 104 mq composto di ingresso su soggiorno con angolo cottura, tre camere da letto, due bagni e due balconi; completa la proprietà una zona privata posta al piano terra destinata a posto auto. Il progetto, in stile lineare e moderno, prevede che tutte le abitazioni siano mirate al massimo risparmio energetico ed offre la possibilità di personalizzare l'immobile con finiture a scelta dell'acquirente su ampio capitolato.
Soluzione ideale per chi desidera vivere in posizione residenziale non distante dai principali servizi e caratterizzata da ampi spazi esterni.
 
											L'utente non ha inserito alcuna descizione
												 Ci trovi qui:
						
						via Cavour n.14, 62012						Civitanova Marche (MC)
						
												Tel: click per vedere | Mail: click per vedere