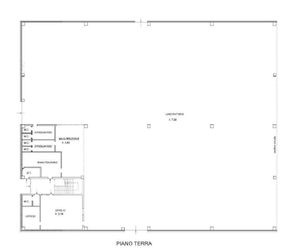
CASTELPLANIO (AN) - CAPANNONE INDUSTRIALE/ARTIGIANALE di circa 2462 mq con corte esterna di circa 2350 mq. L'immobile è costituito da un laboratorio di 2225 mq con un'altezza utile sottotrave di 7,0 m, inclusa porzione di circa 300 mq ove sono stati realizzati l'ingresso, la centrale termica, due uffici, un servizio igienico, un locale officina per la manutenzione interna, due spogliatoi divisi per sesso con i relativi servizi igienici; il resto della superficie è destinato alla produzione. Al piano primo, oltre ad una sala riunioni con accesso da scala interna, vi è l'alloggio del custode della superficie di 120 mq costituito da ingresso-soggiorno-cucina, disimpegno, due camere e un bagno. Il capannone è stato realizzato nel 1994 su una struttura portante in travi e pilastri in cemento armato prefabbricato, tamponamenti esterni in pannelli di cemento armato prefabbricato tinteggiati, con una copertura del tipo a falda. Nel 2002 è stato realizzato con la medesima tecnica costruttiva un ampliamento in aderenza di circa 1436 mq, anch'esso in vendita separatamente. (Rif. 6591). Acquisto soggetto ad IVA con possibilità di applicazione del REVERSE CHARGE Rif. DiLeoImmobiliare 6590
L'utente non ha inserito alcuna descizione
Ci trovi qui:
via Pasubio n. 10 piano 2°, 63074 San Benedetto del Tronto (AP)
Tel: click per vedere | Mail: click per vedere | Web: www.dileoimmobiliare.it