Questo terreno in vendita si trova nella splendida cornice di Bolognetta, un comune in provincia di Palermo, ed è caratterizzato da una particolare conformazione scoscesa. Il terreno è in un luogo strategico essendo vicino allo scorrimento Pa-Ag.
Con una superficie di 10000 metri quadrati, questo terreno è adatto per chiunque desideri avviare un'attività agricola.
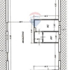
Il terreno è inoltre dotato di un progetto approvato per la realizzazione di una struttura rurale di 120 metri quadrati.
Se stai cercando un terreno in una zona tranquilla e rigogliosa, con un progetto già approvato questo è l'immobile perfetto per te.
L'utente non ha inserito alcuna descizione
Ci trovi qui:
Via Sciuti, 98, 96100 Siracusa (SR)
Tel: click per vedere | Mail: click per vedere | Web: www.remax.it/platinum9