Classe energetica: A3 - In una zona residenziale tranquilla, immersa nel verde e con affaccio sulle colline, proponiamo una villetta centrale di ricercato design in un piccolo complesso di 9 unità. 
Progettata su due livelli, il piano terra è contornato sul fronte e sul retro, da un giardino privato e si compone da una zona living con soggiorno e cucina a vista, disimpegno, bagno e accesso diretto al garage.
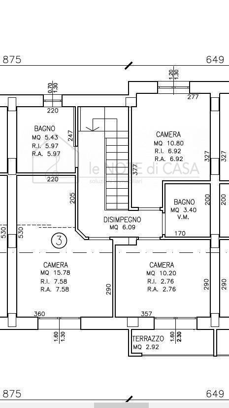
Il piano superiore è dedicato alla zona notte con tre camere (una camera matrimoniale e due camere singole) e due bagni. 
La villa è progettata secondo i più moderni criteri di risparmio energetico per raggiungere il livello NZEB con una classe energetica prevista in A4 con possibilità di scelta di finiture di pregio e qualità. Fra le dotazioni tecnologiche ventilazione meccanica, solare fotovoltaico, riscaldamento a pavimento con pompa di calore per riscaldamento e raffrescamento, impianto di allarme.
 
 Per maggiori informazioni chiama Luca al 347 1392977 oppure scrivi a info@lenotedicasa.it
La presente descrizione è a carattere informativo e non costituisce vincolo contratttuale
 
											L'utente non ha inserito alcuna descizione
												 Ci trovi qui:
						
						Via Giordano Bruno 144, 47023						Cesena (FC)
						
												Tel: click per vedere | Mail: click per vedere | Web: www.lenotedicasa.it