Annuncio inserito da:   LOCAMI

vendita - appartamento - Via Salamone Marino Salvatore 5, Palermo

Zona: non indicata
Rif. P2269766
79.500€
  • 67  mq
  • locali
  • C. E.
vedi sulla mappa

dettagli

Inserito: 6 mesi fa
  • interno immobile
    • Tipo: appartamento
    • Stato: non indicato
    • Superficie: 67 mq
    • Locali: 4
    • Bagni: 1
    • Tipo cucina: abitabile
    • Riscaldamento: autonomo
    • Tipo riscaldamento: pompa di calore
    • Clase energetica: G
    • IPE: 244 kwh/mq annui
  • esterno immobile
    • Piano: 2 di 2
    • Livelli: non indicato
    • Balconi: 1
    • Box: nessuno
    • Giardino: non presente
    • Pannelli solari: non indicato
  • altre informazioni
    • Categoria: Residenziale
    • Anno construzione: 1942
    • Tipo proprietà: non indicato
    • Stato al rogito: non indicato
    • Arredato: si
    • Spese cond./gen.: n.i.
    • Permuta: non indicato
caratteristiche
  • presente
  • non presente
  • info mancanti
  • ascensore
  • terrazzo
  • condizionatore
  • zanzariere
  • cantina
  • soffitta
  • piscina interrata
  • imp. satellitare
  • cablato/lan
  • imp. allarme
  • adatto diversamente abili

descrizione

Rif.1019/PA
Locami Business "Proiezione" è un sistema che, attraverso i nostri professionisti, "seleziona" immobili in vendita con alta Redditività e li "valorizza" con i Brand Locami.

Vuoi conoscere le opportunità a fondo perduto per new attività extra-alberghiere in Sicilia?
Affidati a LOCAMI!

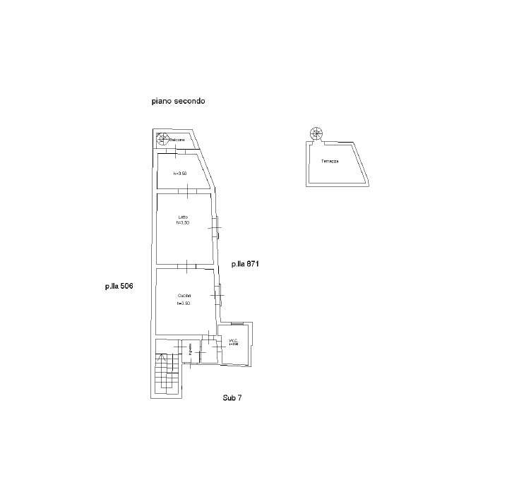
Locami propone in vendita un appartamento di 4 vani di 67 mq, a Palermo ,in via Salamone Marino, in prossimità di Corso tukory e della Stazione Centrale ,area ben servita da bus,stazione ferroviaria, nelle vicinanze scuole , Cittadella Universitaria, Policlinico. L'appartamento si trova all'interno di uno stabile di due piani è posto al secondo piano senza ascensore .
Composto da ingresso su disimpegno, zona giorno con cucina, ampia camera da letto, cameretta e bagno con doccia.
L'appartamento è da ristrutturare.
E' dotato di climatizzatore e dispone di un un terrazzino di 4 mq circa di propria pertinenza dell'appartamento.
L'appartamento è da ristrutturare.
E' dotato di climatizzatore, infissi in taglio termico e dispone di doppia esposizione angolare.
Visionabili previo appuntamento telefonico.

Le immagini di rendering permettono di comprendere possibili soluzioni di arredo.

Dopo la Vendita Locami propone la Gestione Immobiliare certificata.
Locami Gestione Immobiliare certificata valorizza/gestisce il Tuo investimento con un posizionamento multi-Brand Locami.

Valori di redditività creati dal mercato libero immobiliare
Proiezione di redditività affitti brevi variabile annuale 16/18% lordi.
Proiezione di redditività transitoria variabile annuale circa 7% lordi.

AFFIDATI A LOCAMI :
Per avere maggiori informazioni sul decreto (DDG 4613/2024) che prevede contributi a fondo perduto per le imprese turistiche siciliane, pubblicato sulla GURS n. 57 del 27 dicembre 2024, che offre un sostegno economico per rafforzare l'offerta turistica e migliorare la qualità delle strutture ricettive consulta la nostra brochure.

LOCAMI BUSINESS È UN BRAND CHE VENDE, GESTISCE E METTE A REDDITO IL TUO IMMOBILE.
Classe Ener: G - EPglnr 296,18 m2

Real Estate - Broker S.r.l.s.

Sede Legale e Operativa:
Via Bagutta, 13
20121 Milano

Sede Sicilia:
Via Principe di Belmonte, 80
90139 Palermo

Per info contattare il numero verde: 800 210 665 - 0918544730 oppure 3896328934.

vedi l'annuncio sulla mappa

Indirizzo di questo annuncio: Via Salamone Marino Salvatore 5 , Palermo

annunci simili per te

Rif. annuncio P2269766
nome agenzia

L'utente non ha inserito alcuna descizione


Ci trovi qui:
via Graziano Imperatore 29, 20100 Milano (MI)

Tel: click per vedere | Mail: click per vedere | Web: www.locami.net