Annuncio inserito da:   Soges

vendita - appartamento - via emilio giorgi, Bucine (AR)

Zona: non indicata
Rif. 48432
177.000€
  • 105  mq
  • locali
  • C. E. Non indicata 
vedi sulla mappa

dettagli

Inserito: 5 mesi fa
  • interno immobile
    • Tipo: appartamento
    • Stato: da ultimare
    • Superficie: 105 mq
    • Locali: 3
    • Bagni: 1
    • Tipo cucina: abitabile
    • Riscaldamento: autonomo
    • Tipo riscaldamento: non indicato
    • Clase energetica: non indicato
    • IPE: 0 kwh/ annui
  • esterno immobile
    • Piano: 1
    • Totale Piani: Non indicato
    • Livelli: non indicato
    • Balconi: non indicato
    • Box: singolo
    • Giardino: privato di 80mq
    • Pannelli solari: non indicato
  • altre informazioni
    • Categoria: Residenziale
    • Anno construzione: non indicato
    • Tipo proprietà: non indicato
    • Stato al rogito: non indicato
    • Arredato: no
    • Spese cond./gen.: n.i.
    • Permuta: non indicato
caratteristiche
  • presente
  • non presente
  • info mancanti
  • ascensore
  • terrazzo
  • condizionatore
  • zanzariere
  • cantina
  • soffitta
  • piscina interrata
  • imp. satellitare
  • cablato/lan
  • imp. allarme
  • adatto diversamente abili

descrizione

BUCINE - BADIA A RUOTI - Vendiamo appartamento di nuova costruzione, posto al piano primo con giardino privato e posti auto esclusivi.
L'immobile, accessibile tramite ingresso indipendente e da loggia privata, si compone di zona giorno open space con ampia loggia, due camere da letto e bagno.
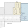
Al piano seminterrato troviamo garage e taverna. (nelle planimetrie è rappresentato in giallo)
25 minuti di macchina dal casello A1 Valdarno, 35 minuti da Siena, 40 minuti da Arezzo.

(Attualmente l'immobile presenta le seguenti opere: SOGLIE PER TUTTE LE APERTURE, INTONACATO, IMBIANCATO, DOCCE E CALATE IN RAME, PREDISPOSIZIONE CANNA FUMARIA TERMO CAMINO O STUFA, FOSSE BIOLOGICHE INDIPENDENTI N° 3 CON SCARICHI ODORI GIA’ AL TETTO, SCARICHI A RETE FOGNARIA ACQUE SCURE E CHIARE, TUBO ACQUA DA POZZETTO CONTATORI A INGRESSO GARAGE,
CORRUGATO DA VANO CONTATORI ENEL A INGRESSO GARAGE, CORRUGATO DA POZZETTO A INGRESSO GARAGE PER LINEA TELEFONICA, TUBO METANO DA VANO CONTATORI A FACCIATA, STRADA ACCESSO URBANIZZATA E ASFALTATA, PIAZZALE PRIVATO E ACCESSO GARAGE CON PAVIMENTO CON AUTOBLOCCANTI
ALTRE OPERE DI URBANIZZAZIONE GIA’ COMPLETATE)

vedi l'annuncio sulla mappa

Indirizzo di questo annuncio: via emilio giorgi , Bucine (AR)

annunci simili per te

Rif. annuncio 48432
nome agenzia

L'utente non ha inserito alcuna descizione


Ci trovi qui:
Lungarno Cristoforo Colombo, 46/b, 50100 Firenze (FI)

Tel: click per vedere | Mail: click per vedere | Web: soges.it