Annuncio inserito da:   ERREMEDIA AGENZIE IMMOBILIARI

vendita - appartamento - Via Nuova Castagnabuona 2, Varazze (SV)

Zona: non indicata
Rif. V000787
470.000€
  • 115  mq
  • locali
  • C. E. Non indicata 
vedi sulla mappa

dettagli

Inserito: 3 mesi fa
  • interno immobile
    • Tipo: appartamento
    • Stato: nuova costruzione
    • Superficie: 115 mq
    • Locali: 5
    • Bagni: 2
    • Tipo cucina: a vista
    • Riscaldamento: autonomo
    • Tipo riscaldamento: ecologico
    • Clase energetica: non indicato
    • IPE: 0 kwh/ annui
  • esterno immobile
    • Piano: non indicato
    • Totale Piani: Non indicato
    • Livelli: non indicato
    • Balconi: non indicato
    • Box: non indicato
    • Giardino: non indicato
    • Pannelli solari: non indicato
  • altre informazioni
    • Categoria: Residenziale
    • Anno construzione: non indicato
    • Tipo proprietà: non indicato
    • Stato al rogito: non indicato
    • Arredato: si
    • Spese cond./gen.: n.i. /anno
    • Permuta: non indicato
caratteristiche
  • presente
  • non presente
  • info mancanti
  • ascensore
  • terrazzo
  • condizionatore
  • zanzariere
  • cantina
  • soffitta
  • piscina interrata
  • imp. satellitare
  • cablato/lan
  • imp. allarme
  • adatto diversamente abili

descrizione

In ottima posizione sulle prime alture di Varazze proponiamo in vendita luminoso attico con splendida terrazza vista mare.
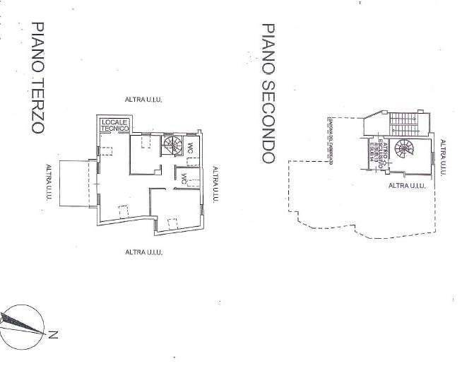
L'appartamento, di circa 115 mq sapientemente distribuiti su due livelli e collegati da un'ampia scala a chiocciola, si compone di ingresso ben organizzato caratterizzato da un arredo funzionale ma accogliente al primo piano, una spaziosa camera da letto matrimoniale, una seconda camera da letto ideata per eventuali ospiti e dotata di divano letto e armadio a muro, due bagni finestrati di cui uno con doccia e uno con vasca, un luminoso soggiorno con cucina a vista di design, un locale tecnico ad uso dispensa e fantastica terrazza con vista aperta su mare e monti al secondo piano.
L'attico, realizzato ex novo in sopraelevazione nel 2016, è dotato di impianto solare termico a sostegno del riscaldamento e della produzione di acqua calda e risultata completamente coibentato favorendo ottime performance di prestazione energetica.
L'appartamento è dotato di pavimentazione in gress effetto legno, in tutti gli spazi ad eccezione dei bagni dotati di pavimentazione in ceramica, di infissi in PVC triplo vetro, tapparelle in metallo e di aria condizionata.
L'abitazione viene venduta parzialmente arredata e completa di comodo posto auto.
Varazze, una vibrante cittadina sul mare rinomata tra gli amanti del surf, è una delle prime cittadine che si incontrano arrivando dal Piemonte e dalla Lombardia, un luogo perfetto dove passare il proprio tempo lontani dal caos cittadino. In circa 30 minuti di auto sono raggiungibili sia Genova, con il suo affascinante centro storico, che Savona.
Trattasi di un'ottima opportunità per coloro che desiderano investire in una residenza immersa nel verde ma senza rinunciare ai vantaggi del mare.
Contattateci oggi stesso per ottenere maggiori informazioni e/o per fissare un appuntamento!
CLASSE ENERGETICA: A+

vedi l'annuncio sulla mappa

Indirizzo di questo annuncio: Via Nuova Castagnabuona 2 , Varazze (SV)

annunci simili per te

Rif. annuncio V000787
nome agenzia

ERREMEDIA AGENZIE IMMOBILIARI

contatta l'utente

Erremedia Agenzie Immobiliari è un team una famiglia è una tradizione della Liguria .
La nostra Agenzia Immobiliare, presente sul mercato da oltre 25 anni, offre una seria, discreta e professionale cura nella mediazione per aiutare i clienti ad acquistare, vendere, affittare casa nel modo più gradevole, veloce e sicuro.
Affidarti a noi significa realizzare un progetto all'altezza delle tue aspettative


Ci trovi qui:
Piazza del Centro 7, 16011 Arenzano (GE)

Tel: click per vedere | Cell: click per vedere | Mail: click per vedere | Web: www.erremedia.it