Annuncio inserito da:   Immobiliare Giomar

vendita - terreno edificabile - Via Castel Volturno , Mondragone (CE)

Zona: non indicata
Rif. RIF. T010
250.000€
  • 900  mq
vedi sulla mappa

dettagli

Inserito: 5 mesi fa
  • caratteristiche
    • Tipo: edificabile
    • Destinazione: non indicata
    • Indice edificabilità: non indicato
    • Rapporto di copertura: non indicato
    • Distanza minima dai confini: non indicato
    • Distanza minima dalla strada: non indicato
    • Altezza massima: non indicato
  • altre informazioni
    • Categoria: Terreno
    • Tipo proprietà: non indicato

descrizione

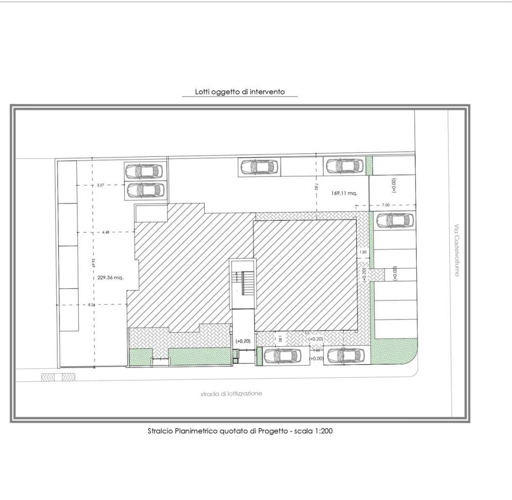
Terreno edificabile della consistenza di circa mq 900 con progetto già approvato al Comune di Mondragone (CE); la realizzazione prevede un locale commerciale al piano terra con triple vetrine frontali e laterali di circa 200 mq oltre locale deposito di circa 150 mq; al piano primo verranno realizzati due appartamenti uso civile residenziale o studio/ufficio secondo le esigenze e le attività.
CLASSE ENERGETICA: Non Applicabile

vedi l'annuncio sulla mappa

Indirizzo di questo annuncio: Via Castel Volturno , Mondragone (CE)

annunci simili per te

Rif. annuncio RIF. T010
nome agenzia

Immobiliare Giomar

contatta l'utente

L'utente non ha inserito alcuna descizione


Ci trovi qui:
VIA DOMIZIANA N. 354, 81034 Mondragone (CE)

Tel: click per vedere | Cell: click per vedere | Web: www.immobiliaregiomar.it