Annuncio inserito da:   Studio Giuliani Real Estate

vendita - appartamento - Contrada Ponte del Colle 14, Artena (RM)

Zona: non indicata
Rif. 34193 rg 708 / 1994
15.375€
  • 140  mq
  • locali
  • C. E. Non indicata 
vedi sulla mappa

dettagli

Inserito: 2 mesi fa
  • interno immobile
    • Tipo: appartamento
    • Stato: buono/abitabile
    • Superficie: 140 mq
    • Locali: 4
    • Bagni: 1
    • Tipo cucina: angolo cottura
    • Riscaldamento: autonomo
    • Tipo riscaldamento: a metano
    • Clase energetica: non indicato
    • IPE: 175 kwh/mq annui
  • esterno immobile
    • Piano: terra / rialzato di 2
    • Livelli: 1
    • Balconi: non indicato
    • Box: non indicato
    • Giardino: non indicato
    • Pannelli solari: non indicato
  • altre informazioni
    • Categoria: Residenziale
    • Anno construzione: 1960
    • Tipo proprietà: non indicato
    • Stato al rogito: non indicato
    • Arredato: non indicato
    • Spese cond./gen.: n.i. /anno
    • Permuta: non indicato
caratteristiche
  • presente
  • non presente
  • info mancanti
  • ascensore
  • terrazzo
  • condizionatore
  • zanzariere
  • cantina
  • soffitta
  • piscina interrata
  • imp. satellitare
  • cablato/lan
  • imp. allarme
  • adatto diversamente abili

descrizione

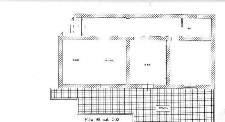
Artena Ponte del Colle 14. Appartamento al piano rialzato, interno 1, composto da ingresso/corridoio, due stanze, cucina/soggiorno, bagno, terrazza a livello, corte esterna comune. Il tutto avente una superficie complessiva di 140 mq.
IMMOBILE VALUTATO EURO 154.000,00
OFFERTA MINIMA: EURO 15.375,00
DATA DELL'ASTA: 18/07/2025 ore 17:00



Casa è dove si trova il cuore. (Plinio il vecchio)
Con lo STUDIO GIULIANI REAL ESTATE il sogno diventa realtà!
Il nostro team di professionisti offre assistenza, consulenza legale e stragiudiziale per tutti i beni mobili e immobili in asta giudiziaria. I servizi offerti al nostro cliente sono molteplici:
Ricerca dell'immobile con valutazione immobiliare
Valutazione preliminare tecnica e studio della perizia con geometra in sede
Valutazione economica con broker finanziario in sede con possibilità di mutuo fino al 100% del prezzo di aggiudicazione
Prenotazione visita degli immobili oggetto di interesse tramite il custode giudiziario
Partecipazione in asta, il cliente verrà seguito fino alla consegna delle chiavi
Effettuiamo inoltre pratiche di saldo e stralcio e di acquisto del credito dai maggiori istituti bancari.
La nostra parcella è dovuta solo in caso di aggiudicazione.
Il nostro team è a vostra completa disposizione per fornirvi tutte le informazioni e per fissare un appuntamento per una consulenza gratuita presso le nostre sedi di Velletri e Nettuno.
I dati inerenti l'immobile ed il materiale fotografico contenuti nel presente annuncio verranno confermati in sede di consulenza con la documentazione aggiornata disponibile.
Puoi consultare tutti gli immobili disponibili in aggiornamento quotidiano sul nostro sito ... o sulla nostra applicazione mobile gratuita DOMINIOASTE.
Studio Giuliani Real Estate
Velletri Via Eduardo De Filippo 2b
Nettuno Via Santa Maria 4
Telefono 06/87607612
Cell 3519048182
Mail info.slg@dominioaste.it
Seguici Su Facebook!
CLASSE ENERGETICA: G 175 kWh/m2 a

vedi l'annuncio sulla mappa

Indirizzo di questo annuncio: Contrada Ponte del Colle 14 , Artena (RM)

annunci simili per te

Rif. annuncio 34193 rg 708 / 1994
nome agenzia

Studio Giuliani Real Estate

contatta l'utente

L'utente non ha inserito alcuna descizione