Annuncio inserito da:   Studio Giuliani Real Estate

vendita - appartamento - Via San Cesareo 120, Rocca Priora (RM)

Zona: non indicata
Rif. 4219550 RG 521 / 201
38.000€
  • 114  mq
  • locali
  • C. E. Non indicata 
vedi sulla mappa

dettagli

Inserito: 2 mesi fa
  • interno immobile
    • Tipo: appartamento
    • Stato: da ristrutturare
    • Superficie: 114 mq
    • Locali: 4
    • Bagni: 2
    • Tipo cucina: angolo cottura
    • Riscaldamento: autonomo
    • Tipo riscaldamento: a metano
    • Clase energetica: non indicato
    • IPE: 175 kwh/mq annui
  • esterno immobile
    • Piano: 1 di 2
    • Livelli: 1
    • Balconi: 1
    • Box: non indicato
    • Giardino: non indicato
    • Pannelli solari: non indicato
  • altre informazioni
    • Categoria: Residenziale
    • Anno construzione: 1970
    • Tipo proprietà: non indicato
    • Stato al rogito: non indicato
    • Arredato: non indicato
    • Spese cond./gen.: n.i. /anno
    • Permuta: non indicato
caratteristiche
  • presente
  • non presente
  • info mancanti
  • ascensore
  • terrazzo
  • condizionatore
  • zanzariere
  • cantina
  • soffitta
  • piscina interrata
  • imp. satellitare
  • cablato/lan
  • imp. allarme
  • adatto diversamente abili

descrizione

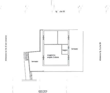
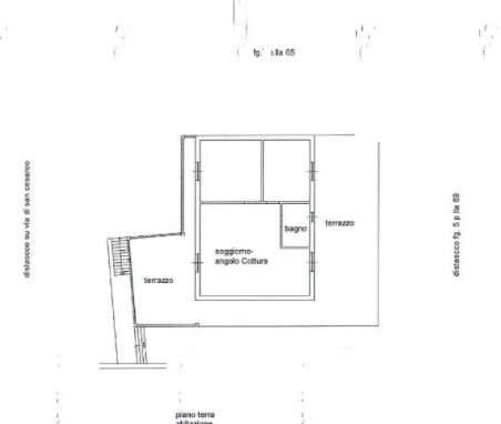
CONTATTACI PER UNA CONSULENZA GRATUITA ALLO 06/87607612 Rocca Priora (RM) Via San Cesareo, 120. Appartamento al piano primo, composto da soggiorno/pranzo con angolo cottura, bagno, tre camere, terrazzo su tre lati dell'abitazione, oltre giardino comune. Il tutto avente una superficie complessiva di mq 114.60.
OFFERTA MINIMA: EURO 38.000,00
DATA DELL'ASTA: 09/07/2024 09:30

Casa è dove si trova il cuore. (Plinio il vecchio)
Con lo STUDIO GIULIANI REAL ESTATE il sogno diventa realtà!
Il nostro team di professionisti offre assistenza, consulenza legale e stragiudiziale per tutti gli immobili in asta giudiziaria e libero mercato. I servizi offerti al nostro cliente sono molteplici:
- Ricerca dellimmobile con valutazione immobiliare
- Valutazione preliminare tecnica e studio della perizia con geometra in sede;
- Valutazione economica con broker finanziario in sede con possibilità di mutuo fino al 100% del prezzo di aggiudicazione;
- Prenotazione visita degli immobili oggetto di interesse tramite il custode giudiziario;
- Partecipazione in asta, il cliente verrà seguito fino alla consegna delle chiavi;
- Effettuiamo inoltre pratiche di saldo e stralcio e di acquisto del credito dai maggiori istituti bancari.
- La nostra parcella è dovuta solo in caso di aggiudicazione.
- Il nostro team è a vostra completa disposizione per fornirvi tutte le informazioni e per fissare un appuntamento per una consulenza gratuita.
I dati inerenti l'immobile ed il materiale fotografico contenuti nel presente annuncio verranno confermati in sede di consulenza.
Puoi consultare tutti gli immobili disponibili in aggiornamento quotidiano sul nostro sito ...
CLASSE ENERGETICA: G 175 kWh/m2 a

vedi l'annuncio sulla mappa

Indirizzo di questo annuncio: Via San Cesareo 120 , Rocca Priora (RM)

annunci simili per te

Rif. annuncio 4219550 RG 521 / 201
nome agenzia

Studio Giuliani Real Estate

contatta l'utente

L'utente non ha inserito alcuna descizione