Annuncio inserito da:   CIVICO1 Agenzia Immobiliare

vendita - appartamento - Riva del Vin, Venezia

Zona: non indicata
Rif. AX149i
1.450.000€
  • 210  mq
  • locali
  • C. E.
vedi sulla mappa

dettagli

Inserito: 22 giorni fa
  • interno immobile
    • Tipo: appartamento
    • Stato: non indicato
    • Superficie: 210 mq
    • Locali: 8
    • Bagni: 2
    • Tipo cucina: non indicato
    • Riscaldamento: non indicato
    • Tipo riscaldamento: non indicato
    • Clase energetica: G
    • IPE: 0 kwh/mq annui
  • esterno immobile
    • Piano: non indicato di 2
    • Livelli: 4
    • Balconi: nessuno
    • Box: non indicato
    • Giardino: non indicato
    • Pannelli solari: non indicato
  • altre informazioni
    • Categoria: Residenziale
    • Anno construzione: non indicato
    • Tipo proprietà: non indicato
    • Stato al rogito: non indicato
    • Arredato: non indicato
    • Spese cond./gen.: n.i. /mese
    • Permuta: non indicato
caratteristiche
  • presente
  • non presente
  • info mancanti
  • ascensore
  • terrazzo
  • condizionatore
  • zanzariere
  • cantina
  • soffitta
  • piscina interrata
  • imp. satellitare
  • cablato/lan
  • imp. allarme
  • adatto diversamente abili

descrizione

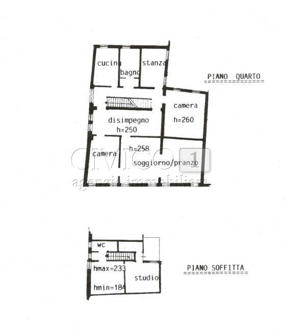
AX149i- CANAL GRANDE – VISTA PONTE DI RIALTO, proponiamo in vendita, attico con affaccio sul Canal Grande e Ponte di Rialto. L'appartamento è così composto: piano quarto, disimpegno, tre camere da letto, ampio salone con affaccio sul canale, ripostiglio, cucina, bagno, al quinto e ultimo piano, bagno, lavanderia, due stanze, soffitta e terrazza. Classe energetica in via di definizione. Richiesti € 1.450.000,00. Punti di interesse nella zona sono: Ponte di Rialto, San Polo, Canal Grande e Mercato di Rialto. L'indirizzo riportato nell'annuncio rappresenta una zona indicativa e non indica la posizione precisa dell'immobile. Per maggiori informazioni chiamate l'Agenzia di Venezia - San Polo - Campo San Stin 2397, Tel. 041.740089 o visitate il nostro sito ...

vedi l'annuncio sulla mappa

Indirizzo di questo annuncio: Riva del Vin , Venezia

annunci simili per te

Rif. annuncio AX149i
nome agenzia

CIVICO1 Agenzia Immobiliare

contatta l'utente

L'utente non ha inserito alcuna descizione


Ci trovi qui:
Campo San Stin 2397, 30100 Venezia (VE)

Tel: click per vedere | Mail: click per vedere | Web: https://www.civico1.com