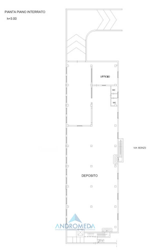
Marigliano – Via Isonso – Proponiamo in affitto un locale commerciale di circa m² 200, con altezza di mt 3,85 e corredato da un ampio deposito situato al piano seminterrato di circa m² 820, con altezza di mt 3,60.
I due livelli sono collegati internamente sia da vano scale che da montacarichi, mentre il piano seminterrato risulta ulteriormente accessibile tramite rampa carrabile diretta, garantendo la massima funzionalità per carico e scarico merci.
L’immobile, in buono stato manutentivo, è già dotato di impianto di climatizzazione e impianto antincendio.
A completare la proprietà un’area esterna di circa m² 1.300, ideale come parcheggio per clienti e dipendenti oppure per attività di carico e scarico merci.
La posizione è particolarmente strategica: l’immobile si trova a pochi minuti dai principali svincoli dell’asse mediano, in una zona ad alto flusso commerciale e ben collegata.
Possibilità di locare i singoli piani.
Libero dall’accettazione di un eventuale proposta di locazione.
Richiesta € 7.500
Quanto vale il tuo immobile? Rivolgiti per una valutazione gratuita alla nostra agenzia Andromeda Immobiliare S.r.l. Metteremo a tua disposizione un Team di professionisti esperti, con esperienza pluriennale in intermediazione ed affari immobiliari che possiedono requisiti ed adeguate conoscenze che garantiscono un prezioso aiuto sia per gli acquirenti che per i venditori in tutte le fasi di una compr
L'utente non ha inserito alcuna descizione
Ci trovi qui:
Via Lipari, 80026 Casoria (NA)
Tel: click per vedere | Mail: click per vedere