Annuncio inserito da:   SOLUZIONE CASA

vendita - appartamento - Via Faustini , Agazzano (PC)

Zona: non indicata
Rif. P2419452
125.000€
  • 58  mq
  • locali
  • C. E. a1 
vedi sulla mappa

dettagli

Inserito: 11 giorni fa
  • interno immobile
    • Tipo: appartamento
    • Stato: non indicato
    • Superficie: 58 mq
    • Locali: 2
    • Bagni: 1
    • Tipo cucina: angolo cottura
    • Riscaldamento: autonomo
    • Tipo riscaldamento: a pavimento
    • Clase energetica: a1
    • IPE: 20 kwh/mq annui
  • esterno immobile
    • Piano: terra / rialzato di 2
    • Livelli: non indicato
    • Balconi: 1
    • Box: singolo di 16mq
    • Giardino: privato di 14mq
    • Pannelli solari: non indicato
  • altre informazioni
    • Categoria: Residenziale
    • Anno construzione: 2025
    • Tipo proprietà: non indicato
    • Stato al rogito: non indicato
    • Arredato: no
    • Spese cond./gen.: n.i.
    • Permuta: non indicato
caratteristiche
  • presente
  • non presente
  • info mancanti
  • ascensore
  • terrazzo
  • condizionatore
  • zanzariere
  • cantina
  • soffitta
  • piscina interrata
  • imp. satellitare
  • cablato/lan
  • imp. allarme
  • adatto diversamente abili

descrizione

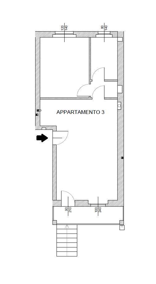
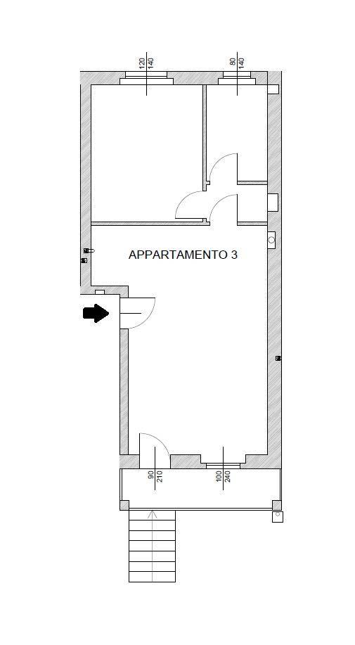
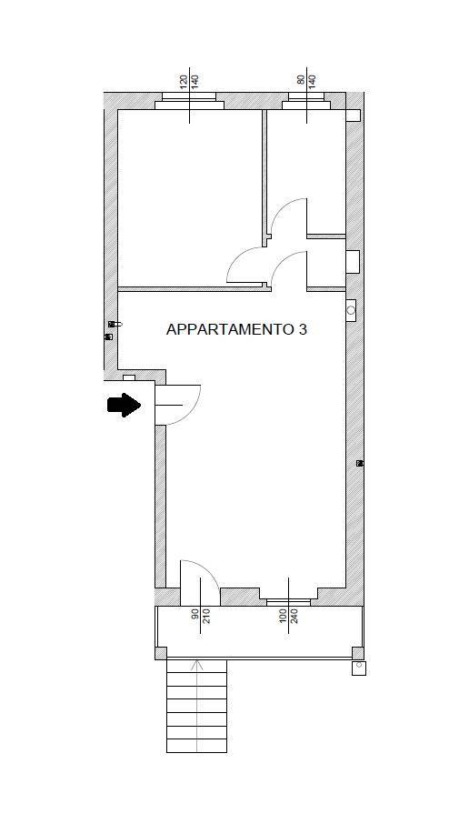
SAN NICOLO' - In palazzina di nuova costruzione CLASSE A, BILOCALE CON GIARDINO PRIVATO composto da soggiorno con angolo cottura con affaccio su balcone coperto e accesso diretto al giardino, disimpegno, camera matrimoniale, bagno finestrato e ripostiglio.
Completano la proprietà una cantina e un ampio box singolo.
Possibilità di personalizzare le finiture interne.

*INFORMATIVA PRIVACY*Per tutelare la privacy dei nostri clienti, vi informiamo che, in alcuni casi, L'INDIRIZZO INDICATO DELL'IMMOBILE E' SOLITAMENTE APPROSSIMATIVO. Maggiori dettagli verranno SEMPRE forniti SOLO dopo contatto telefonico.
Per qualsiasi informazione e per visite potete contattarci ai riferimenti sotto indicati:Si riceve SEMPRE SOLO ESCLUSIVAMENTE con appuntamento da contatto telefonico o mail.dal Lunedì al Venerdì dalle 9.00 alle 12.30 e dalle 14.00 alle 18.00Sabato mattina SOLO PER APPUNTAMENTI - Domenica CHIUSOTEL. 0523.49.08.18MAIL: info@soluzionecasapc.it;MAIL: affitti@soluzionecasapc.it;SOLUZIONECASA Piacenza - Via Monte Penice 18 - 29121 Piacenza

vedi l'annuncio sulla mappa

Indirizzo di questo annuncio: Via Faustini , Agazzano (PC)

annunci simili per te

Rif. annuncio P2419452
nome agenzia

SOLUZIONE CASA

contatta l'utente

L'utente non ha inserito alcuna descizione


Ci trovi qui:
Via Monte Penice 18, 29100 Piacenza (PC)

Tel: click per vedere | Mail: click per vedere | Web: www.soluzionecasapc.it