Annuncio inserito da:   Benedetti e Associati

affitto - Capannone - via Zambelli 27, Formigine (MO)

Zona: non indicata
Rif. A001082
2.600€/mese
  • 500  mq
  • locali
  • C. E. Non indicata 
vedi sulla mappa

dettagli

Inserito: 26 giorni fa
  • interno immobile
    • Tipo: Capannone
    • Stato: buono/abitabile
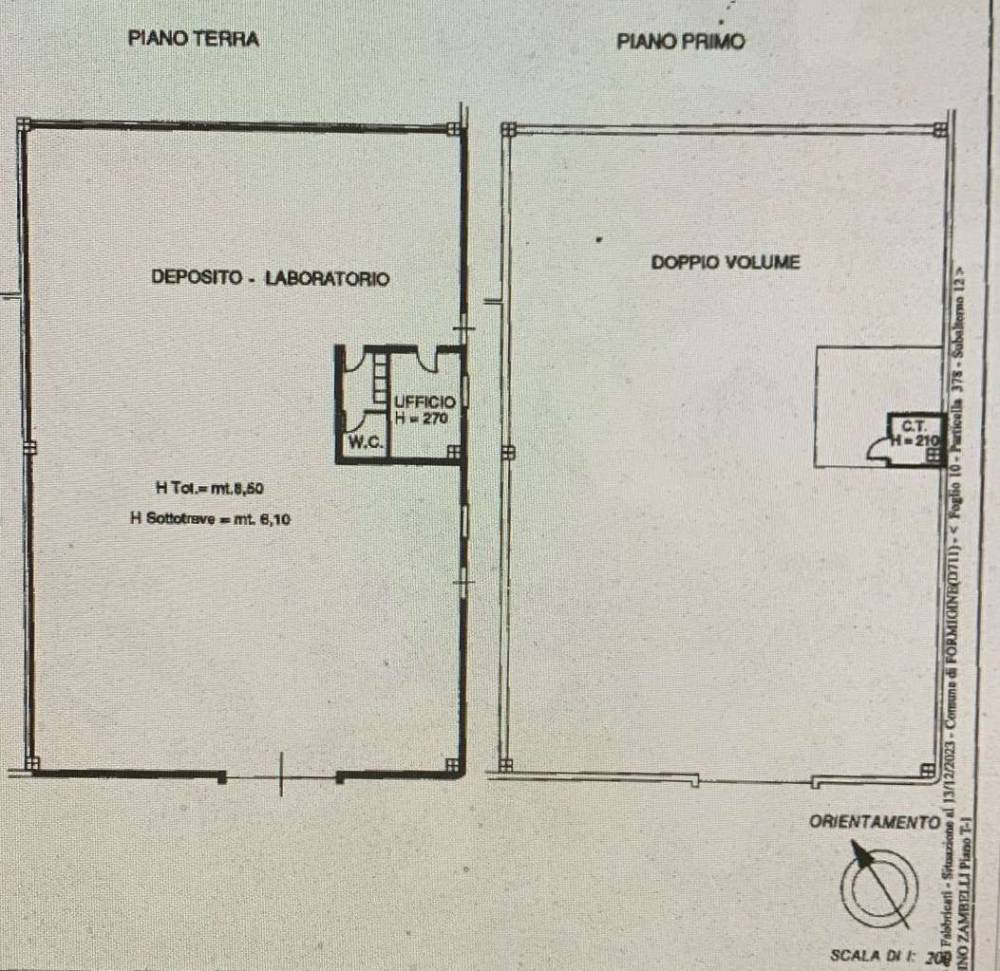
    • Superficie: 500 mq
    • Locali: 1
    • Bagni: 1
    • Tipo cucina: non indicato
    • Riscaldamento: non indicato
    • Tipo riscaldamento: non indicato
    • Clase energetica: non indicato
    • IPE: 0 kwh/ annui
  • esterno immobile
    • Piano: terra / rialzato
    • Totale Piani: Non indicato
    • Livelli: non indicato
    • Balconi: non indicato
    • Box: non indicato
    • Giardino: non indicato
    • Pannelli solari: non indicato
  • altre informazioni
    • Categoria: Commerciale
    • Anno construzione: non indicato
    • Arredato: non indicato
    • Contratto: altro
    • Libero da: non indicato
    • Spese cond./gen.: n.i. /anno
caratteristiche
  • presente
  • non presente
  • info mancanti
  • ascensore
  • terrazzo
  • condizionatore
  • zanzariere
  • cantina
  • soffitta
  • piscina interrata
  • imp. satellitare
  • cablato/lan
  • imp. allarme
  • adatto diversamente abili
  • reception
  • parch. clienti

descrizione

Disponibile Capannone a Magreta provincia di Modena
500 mq, già libero per essere affittato con ufficio e bagno provvisti di soppalco come da foto.

CLASSE ENERGETICA: F

vedi l'annuncio sulla mappa

Indirizzo di questo annuncio: via Zambelli 27 , Formigine (MO)

annunci simili per te

Rif. annuncio A001082
nome agenzia

Benedetti e Associati

contatta l'utente

L'utente non ha inserito alcuna descizione


Ci trovi qui:
Via XX settembre 34, 41049 Sassuolo (MO)

Cell: click per vedere | Web: www.bpsrl.com