Annuncio inserito da:   Immobiliare Arbasetti

vendita - appartamento, Brugnato (SP)

Zona: non indicata
Rif. 508
90.000€
  • 55  mq
  • locali
  • C. E.
vedi sulla mappa

dettagli

Inserito: 10 giorni fa
  • interno immobile
    • Tipo: appartamento
    • Stato: non indicato
    • Superficie: 55 mq
    • Locali: 4
    • Bagni: 1
    • Tipo cucina: non indicato
    • Riscaldamento: non indicato
    • Tipo riscaldamento: non indicato
    • Clase energetica: F
    • IPE: 142 kwh/mq annui
  • esterno immobile
    • Piano: non indicato di 1
    • Livelli: non indicato
    • Balconi: nessuno
    • Box: non indicato
    • Giardino: non indicato
    • Pannelli solari: non indicato
  • altre informazioni
    • Categoria: Residenziale
    • Anno construzione: non indicato
    • Tipo proprietà: non indicato
    • Stato al rogito: non indicato
    • Arredato: no
    • Spese cond./gen.: n.i. /mese
    • Permuta: non indicato
caratteristiche
  • presente
  • non presente
  • info mancanti
  • ascensore
  • terrazzo
  • condizionatore
  • zanzariere
  • cantina
  • soffitta
  • piscina interrata
  • imp. satellitare
  • cablato/lan
  • imp. allarme
  • adatto diversamente abili

descrizione

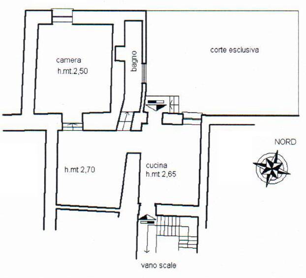
(Rif. 508) Brugnato, zona centro storico. Vendesi appartamento di mq 55 completamente ristrutturato, al piano rialzato, composto da soggiorno, cucina, camera, bagno, con spazio esterno di circa mq 40. Doppio ingresso. Riscaldamento autonomo.

vedi l'annuncio sulla mappa

Indirizzo di questo annuncio: , Brugnato (SP)

annunci simili per te

Rif. annuncio 508
nome agenzia

Immobiliare Arbasetti

contatta l'utente

L'utente non ha inserito alcuna descizione


Ci trovi qui:
Corso C. Colombo 84, 16039 Sestri Levante (GE)

Tel: click per vedere | Mail: click per vedere | Web: http://www.immobiliarearbasetti.it