Annuncio inserito da:   QualityCASA

vendita - palazzo/stabile - , Ancona

Zona: non indicata
Rif. AN40
193.000€
  • 230  mq
  • locali
  • C. E. Non indicata 

dettagli

Inserito: 9 giorni fa
  • interno immobile
    • Tipo: palazzo/stabile
    • Stato: nuova costruzione
    • Superficie: 230 mq
    • Locali: 5
    • Bagni: 3
    • Tipo cucina: non indicato
    • Riscaldamento: autonomo
    • Tipo riscaldamento: a metano
    • Clase energetica: non indicato
    • IPE: 0 kwh/ annui
  • esterno immobile
    • Piano: terra / rialzato di 4
    • Livelli: non indicato
    • Balconi: 3
    • Box: non indicato
    • Giardino: non indicato di 250mq
    • Pannelli solari: non indicato
  • altre informazioni
    • Categoria: Residenziale
    • Anno construzione: 1998
    • Tipo proprietà: non indicato
    • Stato al rogito: non indicato
    • Arredato: non indicato
    • Spese cond./gen.: n.i. /anno
    • Permuta: non indicato
caratteristiche
  • presente
  • non presente
  • info mancanti
  • ascensore
  • terrazzo
  • condizionatore
  • zanzariere
  • cantina
  • soffitta
  • piscina interrata
  • imp. satellitare
  • cablato/lan
  • imp. allarme
  • adatto diversamente abili

descrizione

Agenzia immobiliare QualityCASA propone in vendita in blocco tre appartamenti di nuova costruzione composti da:
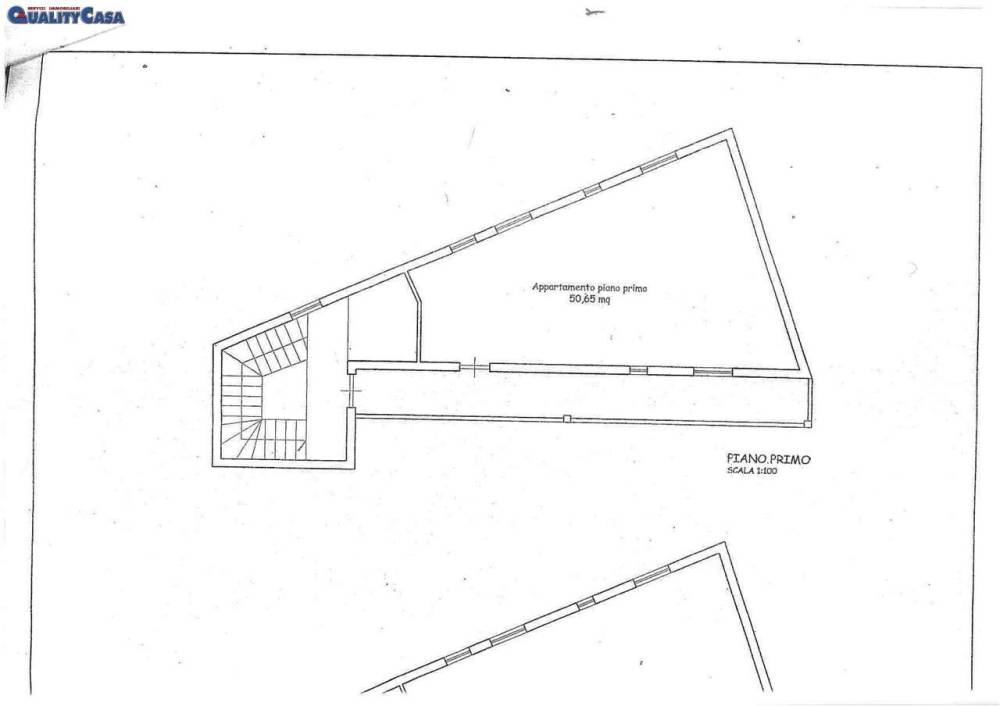
- Appartamento piano primo ancora da suddividere internamente, con balcone e posto auto esterno;
- Appartamento piano secondo: ingresso, soggiorno con camino, cucinino, camera, cameretta, bagno con doccia, ripostiglio, balcone e posto auto esterno;
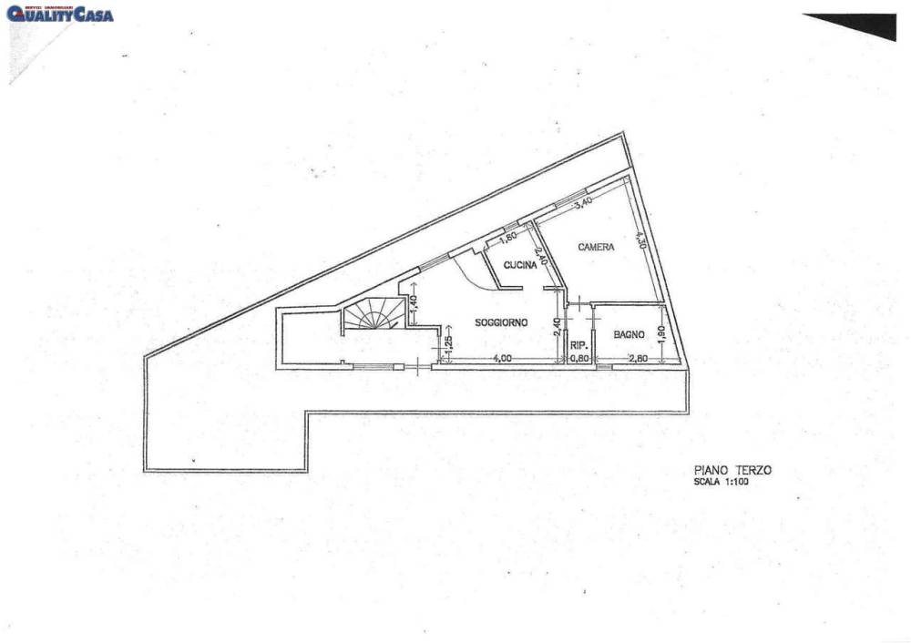
- Appartamento piano terzo: ingresso, soggiorno con camino, cucinotto, camera, bagno, ripostiglio, balcone perimetrale, terrazzo e posto auto esterno.
Porte a scrigno, finestre in legno e alluminio con vetro doppio, riscaldamento autonomo, vano per ascensore, corte condominiale con cancello.
Impianti nuovi tranne per il primo piano che è grezzo.
Rif.AN40 - EURO193.000
Referente Roberto BEDINA 3773433426

* Non è l'immobile che stai cercando?
Consulta il nostro sito, seguici sui social network, e contattaci, fornendo una richiesta dettagliata dell'immobile oggetto dei tuoi desideri, lasciando un recapito telefonico e una mail. Sarai tempestivamente informato.
QualityCASA, da 32 anni "La Qualità al Servizio del Cliente"

CLASSE ENERGETICA: G

Mappa - Indirizzo non inserito

annunci simili per te

Rif. annuncio AN40
nome agenzia

QualityCASA

contatta l'utente

QualityCasa nasce dall'esperienza ventennale di un imprenditore del settore immobiliare che nel corso degli anni ha perfezionato il proprio modus operandi rapportandolo alle esigenze del mercato sia locale che nazionale, con particolare attenzione ai più avanzati strumenti tecnologici allo scopo di servire il cliente al top, con la cura di agenti immobiliari formati per la piena soddisfazione del cliente!


Ci trovi qui:
60033 Chiaravalle (AN)

Tel: click per vedere | Cell: click per vedere | Mail: click per vedere | Web: www.qualitycasa.it