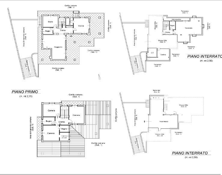
Nel comune di Riva presso Chieri (TO), in via Circonvallazione n. 13/d villetta unifamigliare così composta:- al piano interrato: tavernetta, locali a uso cantina, autorimessa, centrale termica, bagno;- al piano terreno (primo fuori terra): cucina, soggiorno, studio, bagno, ripostiglio e disimpegno;- al piano primo (secondo fuori terra): tre camere, due bagni, disimpegni, due locali di sgombero; il tutto entrostante a terreno. - Il Prezzo visualizzato è la Base d'Asta in quanto l’immobile è oggetto di esecuzione immobiliare venduto tramite Asta Giudiziaria. - L'immobile aggiudicato, viene venduto libero e sgombro da persone cose ed ipoteche nello stato di fatto e di diritto in cui si trova. - Non rappresentiamo il Tribunale, ma lavoriamo nell'esclusivo interesse del potenziale acquirente per garantire un acquisto sicuro. - I consulenti di ASTE ITALIA ti assisteranno in tutte le attività dell'iter giudiziario dalla visita dell'immobile fino alla consegna chiavi. - Contatta il nostro Servizio Clienti , i nostri operatori sono a disposizione per chiarire i molteplici dubbi per partecipare alle ASTE.
L'utente non ha inserito alcuna descizione
Ci trovi qui:
Via San Lorenzo 5 Int. 41, 16123 Genova (GE)
Tel: click per vedere | Mail: click per vedere | Web: www.asteitalia.online