Annuncio inserito da:   Grimaldi Store Como

vendita - appartamento - Via Leonardo da Vinci 0, Erba (CO)

Zona: non indicata
Rif. 4792863
495.000€
  • 202  mq
  • locali
  • C. E.
vedi sulla mappa

dettagli

Inserito: 6 giorni fa
  • interno immobile
    • Tipo: appartamento
    • Stato: non indicato
    • Superficie: 202 mq
    • Locali: 3
    • Bagni: 3
    • Tipo cucina: non indicato
    • Riscaldamento: non indicato
    • Tipo riscaldamento: non indicato
    • Clase energetica: A
    • IPE: 0 kwh/mq annui
  • esterno immobile
    • Piano: non indicato di 4
    • Livelli: non indicato
    • Balconi: nessuno
    • Box: singolo
    • Giardino: privato
    • Pannelli solari: non indicato
  • altre informazioni
    • Categoria: Residenziale
    • Anno construzione: non indicato
    • Tipo proprietà: non indicato
    • Stato al rogito: non indicato
    • Arredato: no
    • Spese cond./gen.: n.i. /mese
    • Permuta: non indicato
caratteristiche
  • presente
  • non presente
  • info mancanti
  • ascensore
  • terrazzo
  • condizionatore
  • zanzariere
  • cantina
  • soffitta
  • piscina interrata
  • imp. satellitare
  • cablato/lan
  • imp. allarme
  • adatto diversamente abili

descrizione

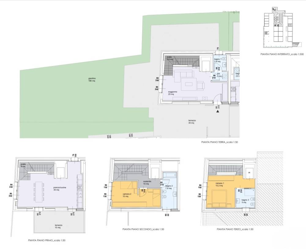
ERBA (CO) – Elegante quadrilocale di nuova costruzione con Domotica e Comfort Moderni. In una splendida cornice verde e tranquilla, in vendita caratteristica e affascinante abitazione collocata nell'originale torreta del cascinale ristruttturato, costituita da: zona giorno con bagno a piano terra, cucina e sala da pranzo al piano primo con sfogo sull'ampio terrazzo, camera doppia con bagno padronale al piano secondo e camera matrimoniale e bagno al piano terzo; tutti i piani collegati da ascensore interno. Completano la soluzione un ampio giardino costituito da una zona di servizio ed una zona verde, un ampio porticato al piano terreno ed un riservao terrazzo coperto al primo piano, oltre box doppio e cantina. Possibilità di realizzare un'ulteriore camera. L'appartamento è dotato di impianto domotico di ultima generazione, che garantisce un elevato livello di comfort, sicurezza ed efficienza energetica. Possibilità di personalizzazione degli interni con finiture di alta gamma, selezionabili da un ricco capitolato di pregio. All’esterno, l’ampio parco giochi condominiale e gli spazi verdi rendono questa soluzione perfetta anche per famiglie o per chi cerca tranquillità senza rinunciare alla qualità.

vedi l'annuncio sulla mappa

Indirizzo di questo annuncio: Via Leonardo da Vinci 0 , Erba (CO)

annunci simili per te

Rif. annuncio 4792863
nome agenzia

Grimaldi Store Como

contatta l'utente

L'utente non ha inserito alcuna descizione


Ci trovi qui:
Via Borsieri 22/B, 22100 Como (CO)

Tel: click per vedere | Mail: click per vedere