Annuncio inserito da:   Gescom

vendita - Capannone - Via Provinciale per Bulgorello , Vertemate con Minoprio (CO)

Zona: non indicata
Rif. A2738/25
1.580.000€
  • 10363  mq
  • locali
  • C. E. Non indicata 
vedi sulla mappa

dettagli

Inserito: 22 giorni fa
  • interno immobile
    • Tipo: Capannone
    • Stato: buono/abitabile
    • Superficie: 10363 mq
    • Locali: 1
    • Bagni: 0
    • Tipo cucina: non indicato
    • Riscaldamento: non indicato
    • Tipo riscaldamento: a metano
    • Clase energetica: non indicato
    • IPE: 0 kwh/ annui
  • esterno immobile
    • Piano: non indicato
    • Totale Piani: Non indicato
    • Livelli: non indicato
    • Balconi: non indicato
    • Box: non indicato
    • Giardino: non indicato
    • Pannelli solari: non indicato
  • altre informazioni
    • Categoria: Commerciale
    • Anno construzione: non indicato
    • Tipo proprietà: non indicato
    • Stato al rogito: non indicato
    • Arredato: si
    • Spese cond./gen.: n.i. /anno
    • Permuta: non indicato
caratteristiche
  • presente
  • non presente
  • info mancanti
  • ascensore
  • terrazzo
  • condizionatore
  • zanzariere
  • cantina
  • soffitta
  • piscina interrata
  • imp. satellitare
  • cablato/lan
  • imp. allarme
  • adatto diversamente abili
  • reception
  • parch. clienti

descrizione

NUOVA PROPOSTA

IMMOBILE DISPONIBILE

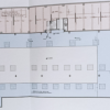
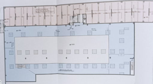
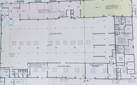
Immobile situato nella zona di Vertemate con Minoprio (CO) in Via Provinciale per Bulgorello.
Edificio commerciale composto da una grande struttura autorizzata alla vendita di generi non alimentari con annessa abitazione del custode.
Con accesso dalla via provinciale per Bulgorello da cui si ha un comodo accesso carraio in posizione nord che immette nel parcheggio antistante l'ingresso all'esposizione e al ricevimento della clientela. L'abitazione del custode consiste di un soggiorno, cucina, disimpegno notte, due camere, due bagni ed un ripostiglio, formano compendio il portico d'ingresso che rende l'unità abitativa con accesso autonomo e al piano interrato un ampio locale disimpegno.

Per te la possibilità di avere un preventivo per il mutuo a condizioni vantaggiose con i nostri partner.
Ulteriori dettagli, foto degli interni, planimetrie e altre info, se disponibili, saranno consultabili previo appuntamento nella sede di COMO con GIANMARCO che inoltre ti informerà sulle possibilità di aggiudicarti questo affare.
L'immobile pubblicato al momento è sottoposto a procedura di vendita legale; Gescom srl è specializzata nella ricerca e pianificazione di investimenti immobiliari secondo innovative strategie di acquisto. Contattaci subito potrai valutare assieme a un nostro tecnico canali distinti di acquisto dell'immobile, procedura di vendita diretta senza ricorrere all'asta (d.lgs. 149/2022) e ancora stralcio immobiliare. Le informazioni sopra riportate non sostituiscono l'avviso pubblicato dal Tribunale competente ne' l'integrale gestione da parte del delegato designato. Il testo e le specifiche indicate nella presente pagina sono generate automaticamente attraverso l'utilizzo di software e/o da A. I., Gescom srl invita a verificare le formazioni e i materiali multimediali sui canali ufficiali, declinando fin d'ora ogni responsabilità su eventuali errori o incongruenze.
Gescom Italia srl leader negli stralci immobiliari e nella consulenza tecnico legale, non si occupa di attività di intermediazione imm. di cui alla legge 39/89.
Cl. energ. da verificare.
Le foto pubblicate nel presente annuncio sono indicative e non esaustive della tipologia, qualità, consistenza e indicazione geografica dell'immobile.

CLASSE ENERGETICA: A

vedi l'annuncio sulla mappa

Indirizzo di questo annuncio: Via Provinciale per Bulgorello , Vertemate con Minoprio (CO)

annunci simili per te

Rif. annuncio A2738/25
nome agenzia

L'utente non ha inserito alcuna descizione


Tel: click per vedere