Annuncio inserito da:   DOMY ONLINE S.R.L.

vendita - appartamento - Via Fratelli Rosselli 26, Sale (AL)

Zona: non indicata
Rif. AL298/23L2-1301-26-1530
17.578€
  • 108  mq
  • locali
  • C. E.
vedi sulla mappa

dettagli

Inserito: 4 giorni fa
  • interno immobile
    • Tipo: appartamento
    • Stato: non indicato
    • Superficie: 108 mq
    • Locali: 6
    • Bagni: 2
    • Tipo cucina: non indicato
    • Riscaldamento: non indicato
    • Tipo riscaldamento: non indicato
    • Clase energetica: G
    • IPE: 0 kwh/mq annui
  • esterno immobile
    • Piano: non indicato di 1
    • Livelli: 2
    • Balconi: nessuno
    • Box: non indicato
    • Giardino: non indicato
    • Pannelli solari: non indicato
  • altre informazioni
    • Categoria: Residenziale
    • Anno construzione: non indicato
    • Tipo proprietà: non indicato
    • Stato al rogito: non indicato
    • Arredato: no
    • Spese cond./gen.: n.i. /mese
    • Permuta: non indicato
caratteristiche
  • presente
  • non presente
  • info mancanti
  • ascensore
  • terrazzo
  • condizionatore
  • zanzariere
  • cantina
  • soffitta
  • piscina interrata
  • imp. satellitare
  • cablato/lan
  • imp. allarme
  • adatto diversamente abili

descrizione

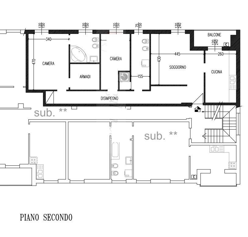
Piena proprietà di alloggio composto da soggiorno, cucina abitabile, due camere da letto, due bagni disimpegnati da un corridoio di ingresso lungo ma non particolarmente dispersivo, con tutti gli ambienti rivolti ad Est, si presenta piuttosto ben ristrutturato ed in ottime condizioni di manutenzione. - Il Prezzo visualizzato è la Base d'Asta in quanto l’immobile è oggetto di esecuzione immobiliare venduto tramite Asta Giudiziaria. - L'immobile aggiudicato, viene venduto libero e sgombro da persone cose ed ipoteche nello stato di fatto e di diritto in cui si trova. - Non rappresentiamo il Tribunale, ma lavoriamo nell'esclusivo interesse del potenziale acquirente per garantire un acquisto sicuro. - I consulenti di ASTE ITALIA ti assisteranno in tutte le attività dell'iter giudiziario dalla visita dell'immobile fino alla consegna chiavi. - Contatta il nostro Servizio Clienti , i nostri operatori sono a disposizione per chiarire i molteplici dubbi per partecipare alle ASTE.

vedi l'annuncio sulla mappa

Indirizzo di questo annuncio: Via Fratelli Rosselli 26 , Sale (AL)

annunci simili per te

Rif. annuncio AL298/23L2-1301-26-1530
nome agenzia

DOMY ONLINE S.R.L.

contatta l'utente

L'utente non ha inserito alcuna descizione


Ci trovi qui:
Via San Lorenzo 5 Int. 41, 16123 Genova (GE)

Tel: click per vedere | Mail: click per vedere | Web: www.asteitalia.online