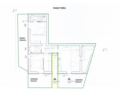
SIAMO NEL COMUNE DI LASTRA A SIGNA, LOCALITA' CARCHERI, PROPONIAMO APPARTAMENTO IN TERRATETTO COMPOSTO DA 2 UNITA' E LIBERO SU 3 LATI, DI 4 VANI PER 85 MQ. NETTI OLTRE ACCESSORI. L'APPARTAMENTO E' POSTO AL PIANO TERRENO CON INGRESSO INDIPENDENTE DA PICCOLO RESEDE PRIVATO DI 16 MQ., SOGGIORNO CON ANGOLO COTTURA E ACCESO AL LOCALE AD USO CANTINA/TAVERNA DI 13MQ, 2 CAMERE MATRIMONIALI E DOPPI SERVIZI. L'IMMOBILE E' IN CORSO DI RISTRUTTURAZIONE E VERRA' CONSEGNATO FINITO. SONO PRESENTI CAPPPOTTO TERMICO, INFISSI NUOVI IN PVC, RISCLADAMENTO A PANNELLI RADIANTI CON RAFFREDDAMENTO, TETTO ISOLATO. POSSIBILITA' DI INSTALLAZIONE IMPIANTO FOTOVOLTAICO. NO SPESE CONDOMINIALI. LA COMPRAVENDITA DI QUESTO IMMOBILE VERRA' EFFETTUATA CON UNA FORMULA TIPO RENT TO BUY. DISPONIBILE APPARTAMENTO AL PIANO PRIMO, STESSA METRATURA CON AMPIO TERRAZZO. - CLASSE ENERGETICA IN ELABORAZIONE RIF. 1/0392 - (agg. 30/10/2025)
 
											L'utente non ha inserito alcuna descizione
												 Ci trovi qui:
						
						VIA CHIANTIGIANA 141 - GINESTRA, 50055						Lastra a Signa (FI)
						
												Tel: click per vedere | Mail: click per vedere | Web: www.immobiliarechiantigiana.it