Annuncio inserito da:   Real Casa Group Srl

vendita - appartamento - Via Nobili 11, Modena

Zona: non indicata
Rif. VY115AY_M10G16
250.000€
  • 145  mq
  • locali
  • C. E. Non indicata 
vedi sulla mappa

dettagli

Inserito: 1 giorno fa
  • interno immobile
    • Tipo: appartamento
    • Stato: buono/abitabile
    • Superficie: 145 mq
    • Locali: 4
    • Bagni: 1
    • Tipo cucina: abitabile
    • Riscaldamento: centralizzato
    • Tipo riscaldamento: a metano
    • Clase energetica: non indicato
    • IPE: 0 kwh/ annui
  • esterno immobile
    • Piano: 1 di 4
    • Livelli: non indicato
    • Balconi: 3
    • Box: non indicato
    • Giardino: non indicato
    • Pannelli solari: non indicato
  • altre informazioni
    • Categoria: Residenziale
    • Anno construzione: 1967
    • Tipo proprietà: non indicato
    • Stato al rogito: non indicato
    • Arredato: non indicato
    • Spese cond./gen.: 1900 € /anno
    • Permuta: non indicato
caratteristiche
  • presente
  • non presente
  • info mancanti
  • ascensore
  • terrazzo
  • condizionatore
  • zanzariere
  • cantina
  • soffitta
  • piscina interrata
  • imp. satellitare
  • cablato/lan
  • imp. allarme
  • adatto diversamente abili

descrizione

RIF. ANNUNCIO: VY115AY


VILL. ARTIGIANO (ANGOLO PARCO FERRARI) - Trattiamo la vendita di ampio appartamento parzialmente ristrutturato in Palazzo di 4 piani ove eseguite opere riguardanti cappotto esterno, tetto e tapparelle. Presente comoda area recintata ove poter parcheggiare n.1 auto.

PALAZZO:
Oltre alle opere menzionate appena eseguite: rifacimento da pochi anni della centrale termica, della pavimentazione e della rampa accesso ai box, manutenzione fosse biologiche, installazione ascensore, della fibra e manutenzione impianto elettrico. Riscaldamento CENTRALIZZATO tramite CONTACALORIE a consumo.

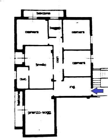
DISPOSIZIONE APPARTAMENTO:
generoso ingresso, soggiorno con balcone, sala da pranzo con cucina e balconcino, Lavanderia con Box doccia, disimpegno notte, 3 Matrimoniali, ulteriore Balcone e Bagno con vasca. A completamento un BOX/CANTINA dimensioni 4,30 x 2,62 ed una SOFFITTA finestrata di oltre 40 m2. L'appartamento presenta la zona giorno con affaccio diretto su STRADA, doppio affaccio zona notte interno al CORTILE.

FINITURE APPARTAMENTO:
sono state eseguite delle opere negli anni (revisionato impianto elettrico ed idraulico, sostituite le porte, ristrutturati i servizi compreso di impiantistica idraulica e pavimentazione). Alcune finiture sono invece dell'epoca anche se in ottimo stato manutentivo. Complessivamente abitabile, si consigliano alcune opere (infissi).

per info:
studio 059 2929690
...
realcasamodena@gmail.it


CLASSE ENERGETICA: E

vedi l'annuncio sulla mappa

Indirizzo di questo annuncio: Via Nobili 11 , Modena

annunci simili per te

Rif. annuncio VY115AY_M10G16
nome agenzia

Real Casa Group Srl

contatta l'utente

Quando si pensa di vendere il proprio immobile, spesso si inizia immaginando un percorso lineare. Ma la realtà è ben diversa: vendere al miglior prezzo di mercato richiede competenze, strategie e una profonda conoscenza del settore, che solo un professionista può offrire. Affidarsi al "sentito dire" o a valutazioni approssimative rischia di allontanarvi dal vero potenziale della vostra proprietà.
Ecco perché è essenziale rivolgersi a Real Casa Group, un'agenzia che trasforma l’incertezza in un processo chiaro e strutturato, guidato da dati concreti e dal supporto esperto di Giovanni Cardillo. Con oltre venticinque anni di esperienza nel mercato immobiliare, Giovanni sa esattamente come valorizzare ogni immobile, creando strategie su misura per garantire che venga venduto al miglior prezzo possibile.


Ci trovi qui:
via Notari; 88, 41126 Modena (MO)

Tel: click per vedere | Cell: click per vedere | Mail: click per vedere | Web: www.realcasamodena.it