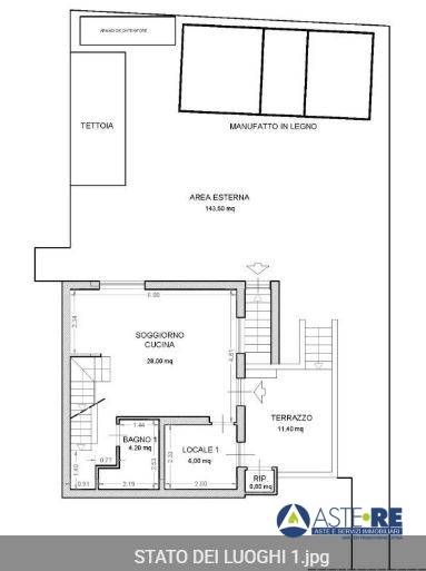
L'immobile si sviluppa su 3 livelli di cui PS, PT, P1 collegati da scala interna per una superficie calpestabile di 97 mq coperti. PS : Disimpegno ; 1 Camera ----- PT : Piano Terra (rialzato), 1 Soggiorno ; 1 Cucina ; 1 Locale Ripostiglio; 1 Bagno ----- P1 : 1 Disimpegno ; 2 Camere ; 1 Bagno. Corte privata esterna al Pt di mq 143.nnImmobile posto in vendita dal Tribunale. Vieni a scoprire la possibilit and #224; di acquistare prima dell'asta. Annuncio finalizzato alla vendita del servizio di assistenza per un acquisto sicuro e conveniente.
L'utente non ha inserito alcuna descizione
Ci trovi qui:
Via Ufente, 20, 04100 Latina (LT)
Cell: click per vedere | Mail: click per vedere | Web: https://latina.astere.it