Annuncio inserito da:   RE/MAX Associati Real Estate

vendita - terreno edificabile - , Vigevano (PV)

Zona: non indicata
Rif. P2431441
70.000€
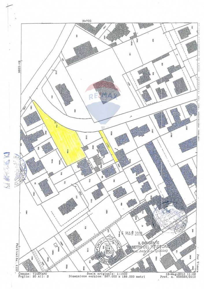
  • 1290  mq
vedi sulla mappa

dettagli

Inserito: 9 giorni fa
  • caratteristiche
    • Tipo: edificabile
    • Destinazione: non indicata
    • Indice edificabilità: non indicato
    • Rapporto di copertura: non indicato
    • Distanza minima dai confini: non indicato
    • Distanza minima dalla strada: non indicato
    • Altezza massima: non indicato
  • altre informazioni
    • Categoria: Terreno
    • Tipo proprietà: non indicato

descrizione

A Vigevano in via Vercelli, proponiamo area di mq. 1290,00 con la possibilità di edificare mq. 645 di SLP. a destinazione residenziale.
L'indice di permeabilità è pari al 40% della superficie dell'area di proprietà, quindi pari a mq. 516 .
La zona è prevalentemente residenziale . E' già stato fatto uno studio di fattibilità per la costruzione di 4 villette a schiera con giardino privato.

Le informazioni e le immagini contenute in questo annuncio sono prettamente commerciali e non costituiscono in alcun modo elemento contrattuale

vedi l'annuncio sulla mappa

Indirizzo di questo annuncio: , Vigevano (PV)

annunci simili per te

Rif. annuncio P2431441
nome agenzia

RE/MAX Associati Real Estate

contatta l'utente

L'utente non ha inserito alcuna descizione


Ci trovi qui:
Via Gran Sasso 31, 20100 Milano (MI)

Tel: click per vedere | Mail: click per vedere | Web: www.remax.it/associatire