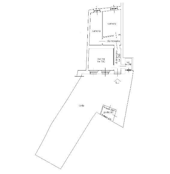
In comune di Cantalupo Ligure, frazione Pallavicino, Via Gianassi n. 4, abitazione facente parte del nucleo storico del borgo di Pallavicino, composta da coppia di alloggi costituenti unico corpo su due piani, con accessi indipendenti al piano terra e mediante scala esterna al piano primo:- appartamento al pt composto da ingresso su corridoio, cucina, due camere e piccolo bagno;- pertinenziale corte esclusiva di accesso e piccola tettoia.L’accesso all’appartamento al piano terreno avviene da portoncino con accesso diretto dalla corte.Sul fronte interno è presente un giardino/cortile comune ai due alloggi con pavimentazione costituita da suolo naturale coperto da vegetazione erbosa di tipo spontaneo e non curata da anni.L’area di corte di 109 mq. ospita anche una piccola tettoia appoggiata in parte al muro dell’edificio adiacente e confinante con l’area di corte, in parte sorretta da 2 pilastrini. L’area della tettoia è pari a 3,8 mq.Presso l’arrivo della scala esterna al piano primo, davanti alla porta d’ingresso vi è un piccolo terrazzo ricavato sul tetto del bagno dell’alloggio al piano primo, il quale sporge rispetto al corpo di fabbrica principale.Superficie complessiva circa 127 mq. lordi (64 mq. lordi al piano terra e 63 mq. lordi al piano primo). - Il Prezzo visualizzato è la Base d'Asta in quanto l’immobile è oggetto di esecuzione immobiliare venduto tramite Asta Giudiziaria. - L'immobile aggiudicato, viene venduto libero e sgombro da persone cose ed ipoteche nello stato di fatto e di diritto in cui si trova. - Non rappresentiamo il Tribunale, ma lavoriamo nell'esclusivo interesse del potenziale acquirente per garantire un acquisto sicuro. - I consulenti di ASTE ITALIA ti assisteranno in tutte le attività dell'iter giudiziario dalla visita dell'immobile fino alla consegna chiavi. - Contatta il nostro Servizio Clienti , i nostri operatori sono a disposizione per chiarire i molteplici dubbi per partecipare alle ASTE.
L'utente non ha inserito alcuna descizione
Ci trovi qui:
Via San Lorenzo 5 Int. 41, 16123 Genova (GE)
Tel: click per vedere | Mail: click per vedere | Web: www.asteitalia.online