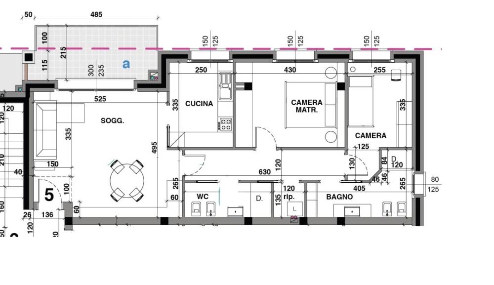
Palazzo ARIANNA, contemporaneo edificio residenziale all'avanguardia delle tecniche costruttive con impianti di ultima generazione altamente performanti. nLa posizione è molto strategica in quanto, se pur posta in un'area riservata lontana dal traffico, dista soli 400 m dalla stazione FS, 500 m dal supermercato and quot;Il Gigante and quot;, 200 m dalle scuole primarie Aldo Moro di via Redipuglia, è servita anche da una farmacia che è posta proprio fronte casa ed è inoltre molto comoda per i collegamenti con i paesi limitrofi.nnIl progetto vede la realizzazione di 11 unità abitative poste al piano primo, secondo e terzo, oltre autorimesse e cantine al piano terra con la creazione anche di parcheggi esterni. nGli appartamenti sono di grandi metrature e dotati tutti di favolosi terrazzi! nPalazzo ARIANNA mira a soddisfare i clienti più esigenti con un progetto ambizioso che racchiude un'accurata progettazione degli spazi interni che risultano essere funzionali, spaziosi e ben luminosi, oltre alle favolose terrazze di grandi metrature, ideali per trascorrere momenti conviviali o di relax nella bella stagione, il tutto in un contesto condominiale signorile e di stile architettonico contemporaneo.nPalazzo ARIANNA sarà realizzata con tecnologie e materiali all'avanguardia dell'edilizia moderna, la struttura principale infatti sarà realizzata col sistema ARGISOL che assicura elevate prestazioni in tema di risparmio energetico, oltre ad essere classificata come struttura antisismica, saranno utilizzati impianti di ultima generazione, privi di metano e 100% elettrici, come il riscaldamento e raffrescamento a pavimento mediante pompa di calore, impianto VMC ventilazione meccanica controllata, impianto di deumidificatore integrato degli ambienti, impianto fotovoltaico, oltre l'impiego di serramenti ad elevato isolamento termico ed acustico. nTutte queste caratteristiche costruttive permetteranno di classificare Palazzo ARIANNA nella più alta CLASSE ENERGETICA A.nInoltre ogni appartamento del Palazzo ARIANNA è personalizzabile sia nelle finiture, sia nella disposizione degli spazi interni, in base alle proprie esigenze.nPalazzo ARIANNA è stato appositamente progettato PRIVO di appartamenti al piano terra con giardini, scelta volta ad assicurare un contesto condominiale raffinato e sempre curato. nDisponibili box doppi, box singoli e posti auto interni oltre a cantine.nPIANO PRIMOnAPP. 5: TRE LOCALI di 100 mq con terrazzo di 10 mq | and euro; 255.000 nAppartamento di 100 mq suddiviso in soggiorno servito da terrazzo, cucina abitabile o a vista a preferenza, corridoio che conduce alla zona notte con ripostiglio / lavanderia, camera matrimoniale, camera singola e due bagni. Abitazione con esposizione nord/est/sud.n***CONSEGNA DICEMBRE 2026***nBOX DOPPI: and euro; 40.000 (BOX 3,8,9,10)nBOX SINGOLI E MEZZO: and euro; 30.000 (BOX 2)nBOX SINGOLI: and euro; 20.000nP. AUTO: VENDUTInCANTINA and euro; 7.000nSPESE ALLACCIAMENTI+ ACCATASTAMENTO and euro; 5.000 - Maggiori Dettagli: Climatizzato, Porta blindata, Cucina Abitabile, Insonorizzazione
 
											L'utente non ha inserito alcuna descizione
												 Ci trovi qui:
						
						Via San Michele, 13, 20015						Parabiago (MI)
						
																		Tel: click per vedere | Cell: click per vedere | Mail: click per vedere | Web: https://www.royal-immobiliare.it