Annuncio inserito da:   Studio Alba srl

vendita - casa semindipendente, Morciano di Romagna (RN)

Zona: non indicata
Rif. 4706-G
150.000€
  • 140  mq
  • locali
  • C. E.

dettagli

Inserito: 3 giorni fa
  • interno immobile
    • Tipo: casa semindipendente
    • Stato: da ristrutturare
    • Superficie: 140 mq
    • Locali: 4
    • Bagni: 3
    • Tipo cucina: non indicato
    • Riscaldamento: non indicato
    • Tipo riscaldamento: non indicato
    • Clase energetica: G
    • IPE: 210 kwh/KW annui
  • esterno immobile
    • Piano: non indicato di 4
    • Livelli: non indicato
    • Balconi: nessuno
    • Box: non indicato
    • Giardino: non indicato
    • Pannelli solari: non indicato
  • altre informazioni
    • Categoria: Residenziale
    • Anno construzione: 1950
    • Tipo proprietà: non indicato
    • Stato al rogito: non indicato
    • Arredato: non indicato
    • Spese cond./gen.: n.i.
    • Permuta: non indicato
caratteristiche
  • presente
  • non presente
  • info mancanti
  • ascensore
  • terrazzo
  • condizionatore
  • zanzariere
  • cantina
  • soffitta
  • piscina interrata
  • imp. satellitare
  • cablato/lan
  • imp. allarme
  • adatto diversamente abili

descrizione

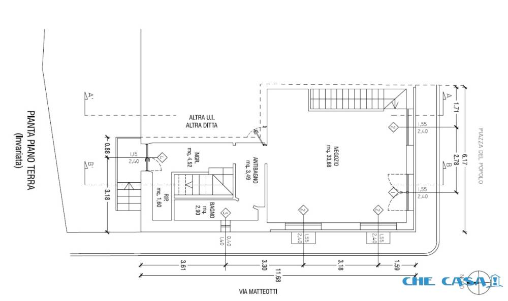
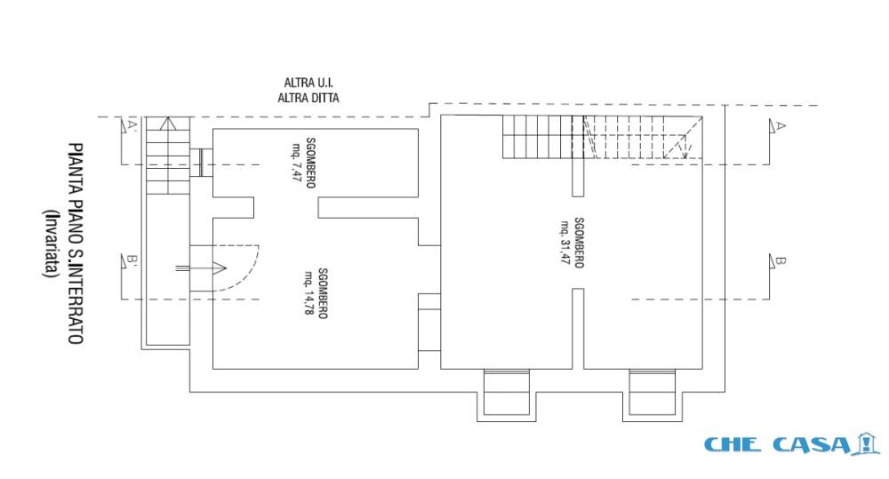
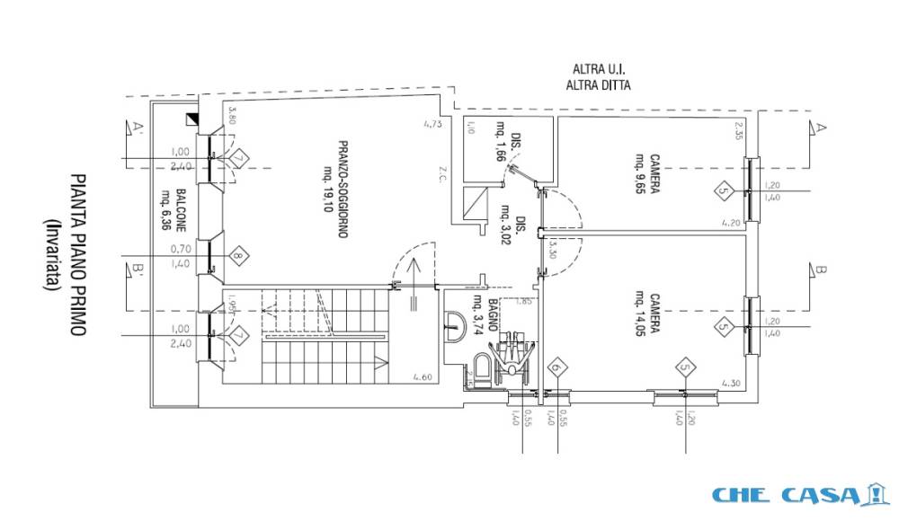
Fabbricato terra cielo nel centro di Morciano di Romagna. E' un ottima opportunità anche in vista delle numerose agevolazioni fiscali per gli interventi di ristrutturazione e di adeguamento energetico promossi negli ultimi mesi. L'immobile è completamente da ristrutturare. Le fondamenta sono già state consolidate. Il progetto di maggiore interesse prevede la realizzazione di un negozzio/studio al piano terra di circa 35/40 m mq collegato internamente ad uno scantinato altrettanto grande. L'unità abitativa prevede invece un ingresso dal retro con una parte di scantinato al piano seminterrato, un appartamento posto al primo piano e costituito da soggiorno con angolo cottura, camera matrimoniale, cameretta, bagno e balcone oltre ad un sottotetto con un ampio terrazzo vivibile che si affaccia sulla bella piazza del municipio, nel quale sarebbe possibile realizzare una terza camera. Per ulteriori informazioni potete contattare l'agenzia CheCasa! di Morciano al numero 0541.85.80.82 - Maggiori Dettagli: Ingresso indipendente

Mappa - Indirizzo non inserito

annunci simili per te

Rif. annuncio 4706-G
nome agenzia

Studio Alba srl

contatta l'utente

L'utente non ha inserito alcuna descizione


Ci trovi qui:
viale Emilia n.23/b, 47838 Riccione (RN)

Tel: click per vedere | Cell: click per vedere | Mail: click per vedere | Web: https://www.checasaimmobiliare.it