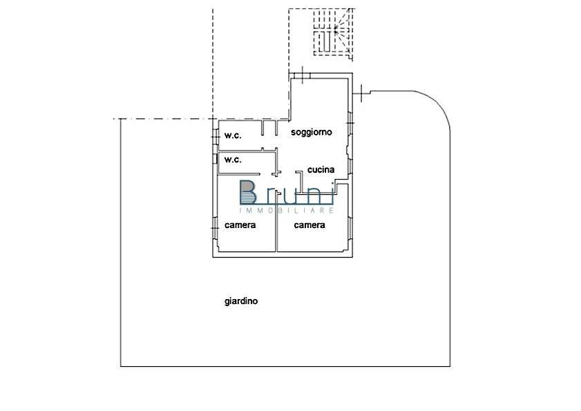
Agenzia Bruni Immobiliare propone: Appartamento in locazione nelle Marche, in provincia di Ascoli Piceno, nel comune di Grottammare, di circa di 75 mq posto al piano terra con doppio ingresso sia condominiale che autonomo.
Composto da: ingresso su soggiorno con angolo cottura, due camere da letto matrimoniali, due bagni di cui uno finestrato con cabina doccia, uno ad areazione forzata con cabina doccia, un piccolo ripostiglio dedicato alla lavanderia, oltre a corte privata perimetrale in parte pavimentata di circa 200 mq.
L'Appartamento in oggetto recentemente ristrutturato si presenta in ottime condizioni, con pavimentazione in gres taglio parquet in zona giorno e parquet in zona notte, persiane, zanzariere, infissi in pvc con doppio vetro, aria condizionata in tutti gli ambienti con comando a distanza tramite app, sistema di video sorveglianza esterno, impianti a norma, autonomo. ARREDATO.
Inoltre la proprietà dispone di un posto auto coperto.
DISPONIBILE DAL  30 APRILE 2026.
SI PRECISA: SONO RICHIESTE REFERENZE LAVORATIVE CON GARANZIA DA VALUTARE AL MOMENTO DELLINTERESSE.
Ubicato vicino al centro non distante dal mare e principali servizi.
 
											L'utente non ha inserito alcuna descizione
												 Ci trovi qui:
						
						Via Campania n.73, 63074						San Benedetto del Tronto (AP)
						
												Mail: click per vedere | Web: www.immobiliarebruni.it