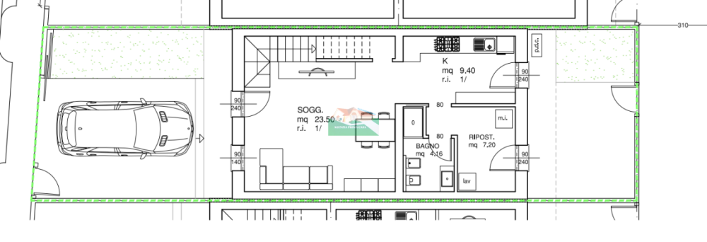
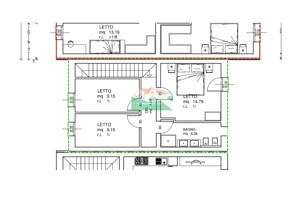
ZONA PORTO FUORI- NUOVA COSTRUZIONE DI VILLETTA A SCHIERA in classe A4 su due livelli (piano terra e primo piano), pannelli fotovoltaici, predisposizione per aria condizionata, giardino privato fronte e retro. All'interno si compone da al piano terra: ampia sala con cucina abitabile, bagno, lavanderia/ ripostiglio; al primo piano: tre camere da letto (una matrimoniale e due singole) e un bagno finestrato. Possibilita di personalizzazione degli interni.
 
											L'utente non ha inserito alcuna descizione
												 Ci trovi qui:
						
						Via Romea 147, 48121						Ravenna (RA)
						
												Tel: click per vedere | Mail: click per vedere