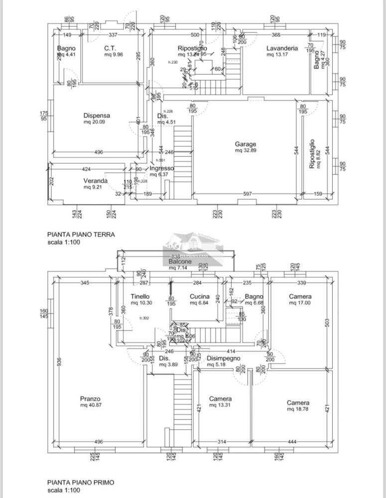
ZONA SAN BIAGIO: Casa indipendente di ampie metrature su due livelli con giardino, PIANO TERRA: Ampio giardino su quattro lati, ampia veranda, due garage, 2 comodi ripostigli, lavanderia, 2 bagni entrambi finestrati PRIMO PIANO: ampio soggiorno con camino, tinello, cucina con balcone, disimpegno notte con 3 camere da letto, bagno finestrato con la vasca, riscaldamento autonomo, classe energetica G, Caldaia a condensazione.
 
											L'utente non ha inserito alcuna descizione
												 Ci trovi qui:
						
						Via Romea 147, 48121						Ravenna (RA)
						
												Tel: click per vedere | Mail: click per vedere