Annuncio inserito da:   Re Casa S.r.l.s.

vendita - appartamento - Viale De Gasperi 62, Grottammare (AP)

Zona: non indicata
Rif. P2445027
trattative riservate
  • 65  mq
  • locali
  • C. E. a4 
vedi sulla mappa

dettagli

Inserito: meno di 1 giorno
  • interno immobile
    • Tipo: appartamento
    • Stato: non indicato
    • Superficie: 65 mq
    • Locali: 3
    • Bagni: 1
    • Tipo cucina: a vista
    • Riscaldamento: autonomo
    • Tipo riscaldamento: a pavimento
    • Clase energetica: a4
    • IPE: 41 kwh/mq annui
  • esterno immobile
    • Piano: 1 di 3
    • Livelli: non indicato
    • Balconi: 1
    • Box: nessuno
    • Giardino: non presente
    • Pannelli solari: non indicato
  • altre informazioni
    • Categoria: Residenziale
    • Anno construzione: 2025
    • Tipo proprietà: non indicato
    • Stato al rogito: non indicato
    • Arredato: no
    • Spese cond./gen.: n.i.
    • Permuta: non indicato
caratteristiche
  • presente
  • non presente
  • info mancanti
  • ascensore
  • terrazzo
  • condizionatore
  • zanzariere
  • cantina
  • soffitta
  • piscina interrata
  • imp. satellitare
  • cablato/lan
  • imp. allarme
  • adatto diversamente abili

descrizione

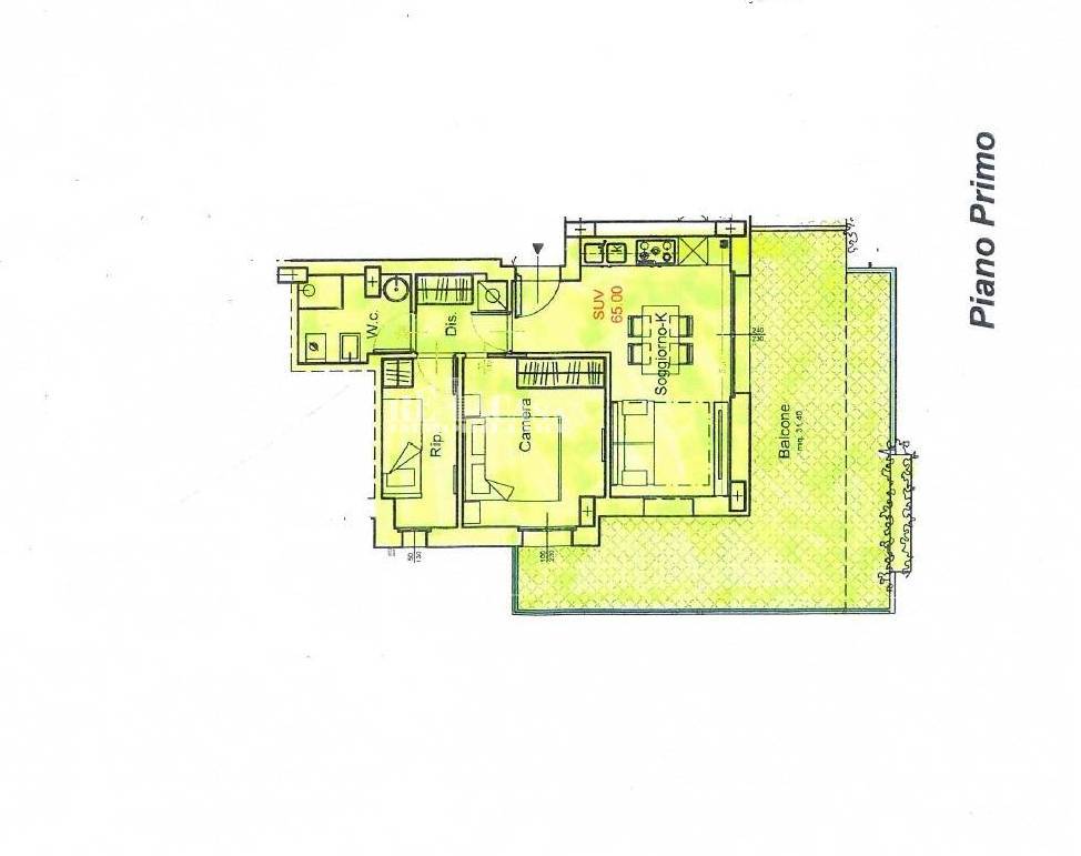
Grottammare, Viale De Gasperi, presso nuovo complesso residenziale TERRAZZE SUL MARE in corso di costruzione, fronte mare.

Appartamento al piano primo con ascensore: superficie di mq 65 suddivisi nel seguente modo: ingresso su soggiorno con angolo cottura, una camera da letto matrimoniale, una cameretta, disimpegno con angolo lavanderia, un bagno con doccia, terrazzo perimetrale per complessivi mq 31,40. Bellsisima vista mare. Esposizione sud - est.

La parte acquirente potrà se richiesto apportare modifiche inerenti la distribuzione interna degli spazi, secondo le proprie necessità, nel rispetto delle aperture esterne e delle condutture.

Finiture: i pavimenti dei soggiorni, cucine, camere e disimpegni, saranno realizzati con una pavimentazione in gres, i rivestimenti dei bagni saranno realizzati in piastrelle di grès porcellanato della Marazzi grande lastri oppure ditte similari in formato 60 x 120 cm, delle seguenti serie e colori a scelta del cliente, i portoncini di primo ingresso alle unità abitative saranno del tipo blindato di dimensioni 90x210cm, con livello di antieffrazione di classe 3 ad anta singola saldamente affrancati alla struttura, ad elevati prestazioni di isolamento acustico e termico, i portoncini saranno dotati di: porta di sicurezza in acciaio rivestita di legno, ad una sola anta, rostri fissi, limitatore di apertura a traslazione, anta di spessore costruita in acciaio zincato, 2 cerniere registrabili nei due sensi in acciaio, telaio su tre lati in acciaio zincato di spessore, angolari ferma pannello, isolamento acustico fino a 40 dB, la progettazione dell’edificio e dei relativi impianti è stata concepita per raggiungere un’elevata classificazione energetica, in conformità al D.M. 26 giugno 2015 e alle recenti disposizioni orientate alla neutralità carbonica degli edifici, in particolare, l’edificio verrà certificato in classe A4.

Infissi: fornitura e posa in opera di infissi esterni in tapparelle motorizzate in alluminio verniciate e coibentate in poliuretano ad alta densità, motorizzate e in preverniciato con ferramenta di chiusura.
Fornitura e posa in opera di infissi esterni in alluminio e/o PVC a taglio termico, inoltre ,i controtelai di ciascun infisso (nel caso di tamponatura con blocco in laterizio) saranno della Pasini o similari con VMC relativo al ricircolo dell’aria integrato mentre nel caso vi sia tamponatura esterna in cartongesso verranno montati in alternativa controtelai tradizionali (con VMC puntuale).

La climatizzazione estiva e invernale, L’impianto di riscaldamento, raffrescamento e sanitario sarà puntuale del tipo “idronico” a mezzo scaldabagno, pompe di calore con riscaldamento a pavimento, il tutto alimentato ad energia elettrica. Per il raffreddamento ci sono gli idrosplit e/o fan-coil con impianto puntuale. Tutto l’impianto sarà completo e funzionante a norma della L.n°42/90 e ss.mm.ii. Inoltre sotto l’aspetto condominiale, l’alimentazione elettrica sarà supportata da impianto fotovoltaico montato in sommità del lastrico solare.

Finitura del pavimento: può essere costituita da piastrelle, gres porcellanato idoneo alla trasmissione del calore. È importante che lo strato di finitura abbia un’elevata conducibilità termica, per massimizzare l’efficienza dell’impianto. Collettori e regolazione Ogni impianto radiante è collegato a un collettore (o più collettori, se l’abitazione presenta più zone), dotato di: Rubinetti di intercettazione sulle partenze e sui ritorni, per consentire eventuali interventi di manutenzione; Flussimetri o misuratori di portata, che permettono di bilanciare correttamente ciascun circuito.

Soluzione unica nel suo genere per chi è alla ricerca di un immobile di pregio ubicato in 1° fila mare.

vedi l'annuncio sulla mappa

Indirizzo di questo annuncio: Viale De Gasperi 62 , Grottammare (AP)

annunci simili per te

Rif. annuncio P2445027
nome agenzia

Re Casa S.r.l.s.

contatta l'utente

L'utente non ha inserito alcuna descizione


Ci trovi qui:
Via San Francesco n. 13 b/c, 63074 San Benedetto del Tronto (AP)

Tel: click per vedere | Mail: click per vedere | Web: www.recasa.it