Annuncio inserito da:   FenixGroup - Padova

vendita - porzione di casa - Via Sette Martiri, Padova

Zona: non indicata
Rif. 7Martiri65
95.000€
  • 104  mq
  • locali
  • C. E. Non indicata 
vedi sulla mappa

dettagli

Inserito: 19 giorni fa
  • interno immobile
    • Tipo: porzione di casa
    • Stato: da ristrutturare
    • Superficie: 104 mq
    • Locali: 3
    • Bagni: 2
    • Tipo cucina: a vista
    • Riscaldamento: autonomo
    • Tipo riscaldamento: non indicato
    • Clase energetica: non indicato
    • IPE: 0 kwh/mq annui
  • esterno immobile
    • Piano: non indicato
    • Totale Piani: Non indicato
    • Livelli: non indicato
    • Balconi: non indicato
    • Box: nessuno
    • Giardino: non indicato
    • Pannelli solari: non indicato
  • altre informazioni
    • Categoria: Residenziale
    • Anno construzione: 1950
    • Tipo proprietà: intera proprietà
    • Stato al rogito: libero
    • Arredato: no
    • Spese cond./gen.: n.i.
    • Permuta: non indicato
caratteristiche
  • presente
  • non presente
  • info mancanti
  • ascensore
  • terrazzo
  • condizionatore
  • zanzariere
  • cantina
  • soffitta
  • piscina interrata
  • imp. satellitare
  • cablato/lan
  • imp. allarme
  • adatto diversamente abili

descrizione

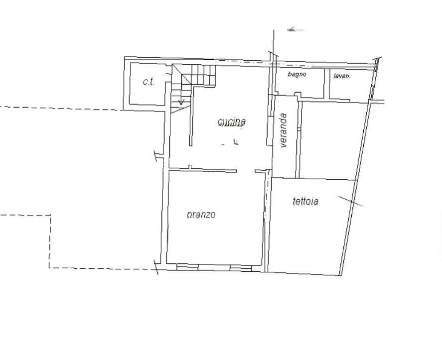
FenixGroup Real Estate Padova propone in vendita in esclusiva una porzione di casa di 104 mq da ristrutturare in Via Sette Martiri, 65. 
L'immobile si sviluppa su due livelli. 
Al piano terra è possibile creare un'ampia zona giorno open-space con un bagno finestrato con box doccia. Vi è inoltre uno spazio verandato dove realizzare un ambiente rilassante e privato da vivere all'aperto. 
Il piano primo si compone di due camere da letto, di cui una matrimoniale ed una singola, un bagno cieco ed un poggiolo. 
Essendo completamente da ristrutturare è comunque possibile modellare gli ambienti in modi alternativi. 
ZONA: L'immobile è ubicato in una zona ben collegata grazie ai mezzi di trasporto. A 2 km si trova il Centro Commerciale "Le Brentelle", a ca. 6 km si raggiunge Prato della Valle, a 2 Km troviamo il Centro Sportivo 200 e ad 1 km la fermata del bus. 
Questa descrizione ha valore puramente indicativo e non rappresenta elemento contrattuale. 

vedi l'annuncio sulla mappa

Indirizzo di questo annuncio: Via Sette Martiri , Padova

annunci simili per te

Rif. annuncio 7Martiri65
nome agenzia

FenixGroup - Padova

contatta l'utente

L'utente non ha inserito alcuna descizione


Ci trovi qui:
Via Ivrea, 00351 Padova (PD)

Tel: click per vedere | Mail: click per vedere