Annuncio inserito da:   Coldwell Banker Immobiliare Morabito

vendita - villa singola - Strada Vallescura 22, Grazzano Badoglio (AT)

Zona: non indicata
Rif. P2448724
3.980.000€
  • 2700  mq
  • 54  locali
  • C. E.
vedi sulla mappa

dettagli

Inserito: 7 giorni fa
  • interno immobile
    • Tipo: villa singola
    • Stato: non indicato
    • Superficie: 2700 mq
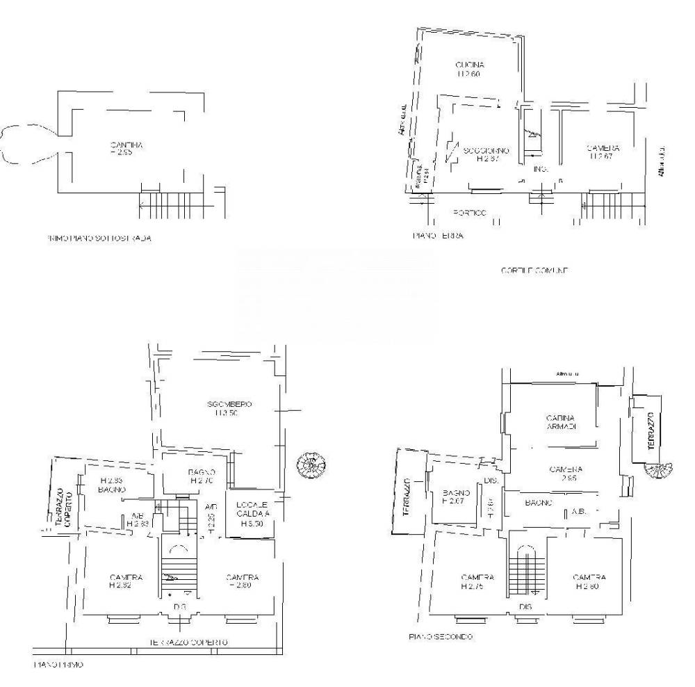
    • Locali: 54
    • Bagni: 12
    • Tipo cucina: abitabile
    • Riscaldamento: autonomo
    • Tipo riscaldamento: a radiatori
    • Clase energetica: E
    • IPE: 295 kwh/mq annui
  • esterno immobile
    • Piano: terra / rialzato di 2
    • Livelli: non indicato
    • Balconi: 1
    • Box: doppio di 40mq
    • Giardino: privato
    • Pannelli solari: non indicato
  • altre informazioni
    • Categoria: Residenziale
    • Anno construzione: 1890
    • Tipo proprietà: non indicato
    • Stato al rogito: non indicato
    • Arredato: no
    • Spese cond./gen.: n.i.
    • Permuta: non indicato
caratteristiche
  • presente
  • non presente
  • info mancanti
  • ascensore
  • terrazzo
  • condizionatore
  • zanzariere
  • cantina
  • soffitta
  • piscina interrata
  • imp. satellitare
  • cablato/lan
  • imp. allarme
  • adatto diversamente abili

descrizione

Villa con azienda vitivinicola a Grazzano Badoglio (AT) – Monferrato

Nel cuore del Monferrato Astigiano, a Grazzano Badoglio, proponiamo un articolato compendio immobiliare in posizione panoramica, circondato da vigneti e noccioleti. La proprietà, storica e accuratamente mantenuta, integra residenza padronale, attività ricettiva su due fabbricati, cantina con botti e reparti di stoccaggio, oltre a capannoni e locali tecnici: una soluzione ideale per chi desidera coniugare ospitalità di charme ed impresa vitivinicola con produzione media di circa 80.000 bottiglie/anno.

Composizione interna della struttura

Varcato il cancello, la proprietà si articola in distinti corpi funzionali, concepiti per coniugare residenza di rappresentanza, ospitalità e attività produttiva:

Corpo A – Residenza padronale con B&B (2 livelli): nel primo fabbricato si trovano la residenza padronale attualmente abitata dai proprietari e, su due piani, un’area adibita a B&B con camere e servizi.

Corpo B – Struttura ricettiva indipendente (2 livelli): fabbricato dedicato al B&B con camere, bagni e spazi comuni; soluzione ideale per gestire gruppi o flussi separati, preservando la privacy della parte padronale.

Cantina e reparti tecnici: locali di vinificazione, botti per affinamento, magazzini e area di stoccaggio delle bottiglie.

Spazi di servizio: capannone agricolo per mezzi e materiali, locale attrezzi (trattori e piccola meccanizzazione) e depositi.

Esterni, terreni e pertinenze

La corte interna e i terrazzamenti ospitano una piscina con aree prendisole e un giardino ideale per degustazioni ed eventi. I terreni accorpati superano i 20 ettari complessivi, così distribuiti:
ca. 11 ha di vigneto (Barbera d’Asti DOCG, Grignolino d’Asti DOC, Chardonnay Piemonte DOC – marchi registrati);
ca. 4 ha di noccioleto;
~100 piante di olivo;
ca. 4,5 ha tra seminativi e boschi.

Completano la proprietà: box doppio (circa 40 m²), posti auto scoperti (4), balconi/terrazze con vista sulle colline e sulle Alpi nelle giornate terse. L’assetto planimetrico, con tutti i corpi funzionali contigui ai terreni, consente una gestione efficiente dell’azienda e un facile passaggio tra attività produttiva e ricettiva.

Distanze e collegamenti

La location garantisce privacy e, al contempo, ottimi collegamenti stradali:
Moncalvo ~ 7–10 km
Asti ~ 25–30 km
Casale Monferrato ~ 25–30 km
Autostrada A21 (TO–PC–BS) – accessi comodi da Asti Est/Ovest (circa 30–35 min);
Torino ~ 60–70 km (~1 h in auto) e Aeroporto di Torino–Caselle ~ 90 km;
Milano ~ 110–130 km (in funzione del percorso A21/A7).

vedi l'annuncio sulla mappa

Indirizzo di questo annuncio: Strada Vallescura 22 , Grazzano Badoglio (AT)

annunci simili per te

Rif. annuncio P2448724
nome agenzia

Coldwell Banker Immobiliare Morabito

contatta l'utente

L'utente non ha inserito alcuna descizione


Ci trovi qui:
Corso Sempione, 44, 20100 Milano (MI)

Tel: click per vedere | Mail: click per vedere | Web: www.morabitoimmobiliare.it