Annuncio inserito da:   Studio Giuliani Real Estate

vendita - appartamento - via Pasubio 39, Latina

Zona: non indicata
Rif. 4236615 RG 518/2016
44.750€
  • 87  mq
  • locali
  • C. E. Non indicata 
vedi sulla mappa

dettagli

Inserito: 2 giorni fa
  • interno immobile
    • Tipo: appartamento
    • Stato: buono/abitabile
    • Superficie: 87 mq
    • Locali: 4
    • Bagni: 0
    • Tipo cucina: non indicato
    • Riscaldamento: non indicato
    • Tipo riscaldamento: non indicato
    • Clase energetica: non indicato
    • IPE: 0 kwh/ annui
  • esterno immobile
    • Piano: terra / rialzato
    • Totale Piani: Non indicato
    • Livelli: non indicato
    • Balconi: non indicato
    • Box: non indicato
    • Giardino: non indicato
    • Pannelli solari: non indicato
  • altre informazioni
    • Categoria: Residenziale
    • Anno construzione: non indicato
    • Tipo proprietà: non indicato
    • Stato al rogito: non indicato
    • Arredato: non indicato
    • Spese cond./gen.: n.i. /anno
    • Permuta: non indicato
caratteristiche
  • presente
  • non presente
  • info mancanti
  • ascensore
  • terrazzo
  • condizionatore
  • zanzariere
  • cantina
  • soffitta
  • piscina interrata
  • imp. satellitare
  • cablato/lan
  • imp. allarme
  • adatto diversamente abili

descrizione

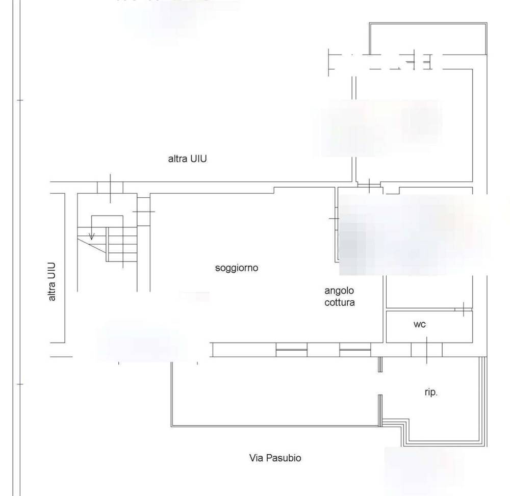
CONTATTACI PER UNA CONSULENZA GRATUITA ALLO 06/87607612 Latina (LT) via Pasubio n.39. Appartamento posto al Piano Terra di un edificio per civili abitazioni ubicato in zona centrale del Comune di Latina, con accesso da Via Pasubio n. 39. L'appartamento è composto da soggiorno con angolo cottura, due camere da letto, due bagni, un disimpegno ed un ripostiglio, il tutto per un totale di mq 87,70 utili, più due balconi a livello di mq 21,90.
OFFERTA MINIMA: 44.750,00 EURO
DATA DELL'ASTA: 23/09/2025 16:00
Casa è dove si trova il cuore. (Plinio il vecchio)
Con lo STUDIO GIULIANI REAL ESTATE il sogno diventa realtà!
Il nostro team di professionisti offre assistenza, consulenza legale e stragiudiziale per tutti i beni mobili e immobili in asta giudiziaria. I servizi offerti al nostro cliente sono molteplici:
Ricerca dell'immobile con valutazione immobiliare
Valutazione preliminare tecnica e studio della perizia con geometra in sede
Valutazione economica con broker finanziario in sede con possibilità di mutuo fino al 100% del prezzo di aggiudicazione
Prenotazione visita degli immobili oggetto di interesse tramite il custode giudiziario
Partecipazione in asta, il cliente verrà seguito fino alla consegna delle chiavi
Effettuiamo inoltre pratiche di saldo e stralcio e di acquisto del credito dai maggiori istituti bancari.
La nostra parcella è dovuta solo in caso di aggiudicazione.
Il nostro team è a vostra completa disposizione per fornirvi tutte le informazioni e per fissare un appuntamento per una consulenza gratuita presso le nostre sedi di Velletri e Nettuno.
I dati inerenti l'immobile ed il materiale fotografico contenuti nel presente annuncio verranno confermati in sede di consulenza con la documentazione aggiornata disponibile.
Puoi consultare tutti gli immobili disponibili in aggiornamento quotidiano sul nostro sito
Studio Giuliani Real Estate
Velletri Via Eduardo De Filippo 2b
Nettuno Via Santa Maria 4
Telefono 06/87607612
Cell 3519048182
Mail
Seguici Su Facebook!
CLASSE ENERGETICA: A+

vedi l'annuncio sulla mappa

Indirizzo di questo annuncio: via Pasubio 39 , Latina

annunci simili per te

Rif. annuncio 4236615 RG 518/2016
nome agenzia

Studio Giuliani Real Estate

contatta l'utente

L'utente non ha inserito alcuna descizione