Annuncio inserito da:   22REB

vendita - appartamento - Via Lugugnana , Portogruaro (VE)

Zona: non indicata
Rif. GM3899/25
51.230€
  • 87  mq
  • locali
  • C. E. Non indicata 
vedi sulla mappa

dettagli

Inserito: 1 giorno fa
  • interno immobile
    • Tipo: appartamento
    • Stato: non indicato
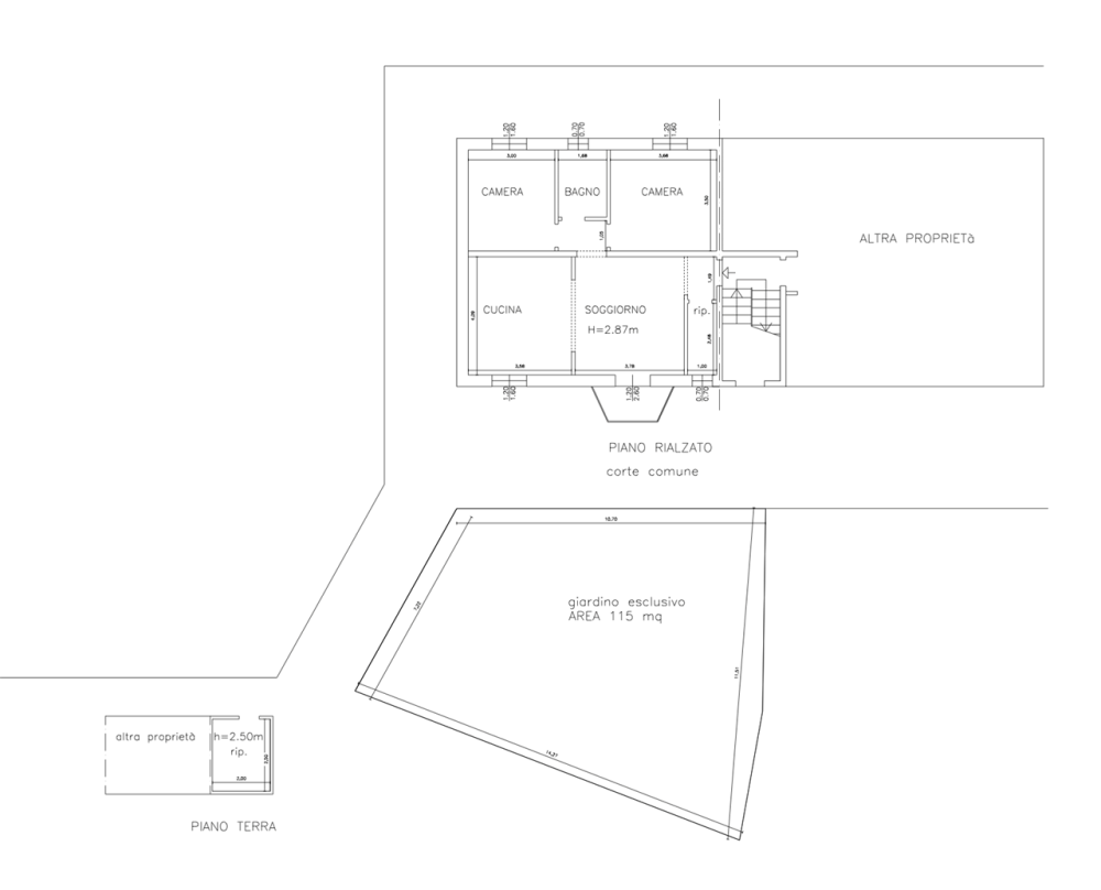
    • Superficie: 87 mq
    • Locali: 6
    • Bagni: 1
    • Tipo cucina: non indicato
    • Riscaldamento: non indicato
    • Tipo riscaldamento: non indicato
    • Clase energetica: non indicato
    • IPE: 0 kwh/ annui
  • esterno immobile
    • Piano: terra / rialzato
    • Totale Piani: Non indicato
    • Livelli: non indicato
    • Balconi: non indicato
    • Box: non indicato
    • Giardino: non indicato
    • Pannelli solari: non indicato
  • altre informazioni
    • Categoria: Residenziale
    • Anno construzione: non indicato
    • Tipo proprietà: non indicato
    • Stato al rogito: non indicato
    • Arredato: non indicato
    • Spese cond./gen.: n.i. /anno
    • Permuta: non indicato
caratteristiche
  • presente
  • non presente
  • info mancanti
  • ascensore
  • terrazzo
  • condizionatore
  • zanzariere
  • cantina
  • soffitta
  • piscina interrata
  • imp. satellitare
  • cablato/lan
  • imp. allarme
  • adatto diversamente abili

descrizione

Appartamento al piano rialzato con porzione di giardino ad uso esclusivo e ripostiglio esterno situato a Portogruaro (VE) in via Lugugnana, costituito da un ingresso, ripostiglio, un soggiorno, una cucina, due camere da letto ed un bagno; al piano secondo con ingresso centrale vi è una soffitta che si sviluppa sulla metà a destra del fabbricato ad uso ripostiglio.

Stato di occupazione: Immobile libero.


22REB è a disposizione per valutare come la nostra esperienza potrà favorirti nel realizzare il tuo miglior investimento.

L'immobile è oggetto di vendita giudiziaria.

22REB non si occupa di attività di intermediazione imm. di cui alla legge 39/89. Per motivi di privacy la foto dell'immobile/terreno è indicativa ma non esaustiva.
CLASSE ENERGETICA: In fase di valutazione

vedi l'annuncio sulla mappa

Indirizzo di questo annuncio: Via Lugugnana , Portogruaro (VE)

annunci simili per te

Rif. annuncio GM3899/25
nome agenzia

Il nostro obiettivo è quello di fornire un servizio completo e di alta qualità ai nostri clienti, guidandoli passo dopo passo nel processo di investimento immobiliare attraverso aste giudiziarie. Collaboriamo con esperti del settore e professionisti qualificati per garantire ai nostri clienti la massima trasparenza e sicurezza nelle transazioni. Grazie alla nostra esperienza nel settore e alla nostra presenza internazionale, in particolare il mercato europeo (Spagna e Italia in primo piano) siamo in grado di identificare le migliori opportunità di investimento immobiliare e di guidare i nostri clienti nella scelta dell'immobile più adatto alle loro esigenze e obiettivi finanziari. Siamo fiduciosi che la nostra presenza sul mercato europeo delle aste giudiziarie porterà nuove opportunità di investimento a privati e investitori professionisti, consentendo loro di accedere a immobili di qualità a prezzi vantaggiosi e di ottenere rendimenti interessanti sui loro investimenti.


Tel: click per vedere | Mail: click per vedere | Web: WWW.22REB.COM