Annuncio inserito da:   Agenzia Immobiliare Andromeda

affitto - ufficio, Grumo Nevano (NA)

Zona: non indicata
Rif. 2077
1.550€/mese
  • 130  mq
  • locali
  • C. E.

dettagli

Inserito: 1 giorno fa
  • interno immobile
    • Tipo: ufficio
    • Stato: ristrutturato
    • Superficie: 130 mq
    • Locali: 2
    • Bagni: non indicato
    • Tipo cucina: non presente
    • Riscaldamento: non presente
    • Clase energetica: B
    • IPE: 100 kwh/mq annui
  • esterno immobile
    • Piano: non indicato
    • Totale Piani: Non indicato
    • Livelli: non indicato
    • Balconi: non indicato
    • Box: non indicato
    • Giardino: non indicato
    • Pannelli solari: non indicato
  • altre informazioni
    • Categoria: Commerciale
    • Anno construzione: non indicato
    • Arredato: non indicato
    • Contratto: non indicato
    • Libero da: non indicato
    • Spese cond./gen.: 34500 €
caratteristiche
  • presente
  • non presente
  • info mancanti
  • ascensore
  • terrazzo
  • condizionatore
  • zanzariere
  • cantina
  • soffitta
  • piscina interrata
  • imp. satellitare
  • cablato/lan
  • imp. allarme
  • adatto diversamente abili
  • reception
  • parch. clienti

descrizione

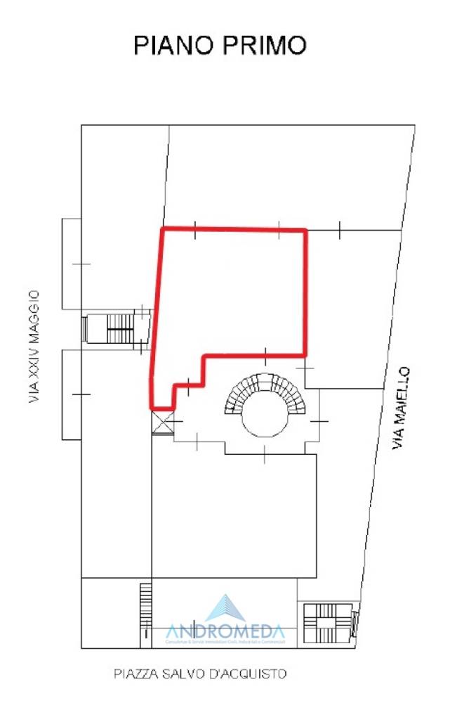
Grumo Nevano – Viale Ventiquattro Maggio - Proponiamo in affitto un ufficio di circa m² 130, con altezza di mt 3, situato al primo piano servito da ascensore di una galleria commerciale.
L’immobile, attualmente allo stato di grezzo, verrà consegnato completo di infissi interni ed esterni, pavimentazione, controsoffitto, impianto elettrico base ed impianto antincendio base.
La galleria dispone inoltre di un parcheggio al piano seminterrato, comodamente servito da ascensore, un vantaggio che facilita l’accesso alla clientela e aumenta l’attrattività dell’intero complesso.
Il locale vanta un’ottima visibilità, trovandosi su una strada ad intenso passaggio veicolare e pedonale, nelle immediate vicinanze di numerose altre attività commerciali.

Possibilità di ampliamento di ulteriori m² 135.
Richiesta: € 1.550/mese
Spese condominiali mensili pari a € 345,00
Quanto vale il tuo immobile? Rivolgiti per una valutazione gratuita alla nostra agenzia Andromeda Immobiliare S.r.l. Metteremo a tua disposizione un Team di professionisti esperti, con esperienza pluriennale in intermediazione ed affari immobiliari che possiedono requisiti ed adeguate conoscenze che garantiscono un prezioso aiuto sia per gli acquirenti che per i venditori in tutte le fasi di una compravendita immobiliare. Per qualsiasi informazione e/o per fissare un appuntamento senza impegno, contattare il nostro ufficio ANDROMEDA SR

Mappa - Indirizzo non inserito

annunci simili per te

Rif. annuncio 2077
nome agenzia

Agenzia Immobiliare Andromeda

contatta l'utente

L'utente non ha inserito alcuna descizione


Ci trovi qui:
Via Lipari, 80026 Casoria (NA)

Tel: click per vedere | Mail: click per vedere