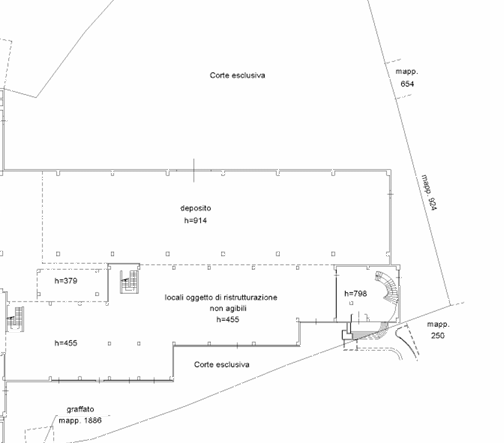
Capannone industriale situato a Gozzano (NO), si sviluppa su 2 livelli collegati tra loro con scale interne ed esterne, la superficie lorda è di 7.700mq con annesse delle aree pertinenziali, fra cui corti esclusive e terreni esterni adibiti a parcheggio.
22REB è a disposizione per valutare come la nostra esperienza potrà favorirti nel realizzare il tuo miglior investimento.
L'immobile è oggetto di vendita giudiziaria.
22REB non si occupa di attività di intermediazione imm. di cui alla legge 39/89. Per motivi di privacy la foto dell'immobile/terreno è indicativa ma non esaustiva.
CLASSE ENERGETICA: In fase di valutazione
Il nostro obiettivo è quello di fornire un servizio completo e di alta qualità ai nostri clienti, guidandoli passo dopo passo nel processo di investimento immobiliare attraverso aste giudiziarie. Collaboriamo con esperti del settore e professionisti qualificati per garantire ai nostri clienti la massima trasparenza e sicurezza nelle transazioni. Grazie alla nostra esperienza nel settore e alla nostra presenza internazionale, in particolare il mercato europeo (Spagna e Italia in primo piano) siamo in grado di identificare le migliori opportunità di investimento immobiliare e di guidare i nostri clienti nella scelta dell'immobile più adatto alle loro esigenze e obiettivi finanziari. Siamo fiduciosi che la nostra presenza sul mercato europeo delle aste giudiziarie porterà nuove opportunità di investimento a privati e investitori professionisti, consentendo loro di accedere a immobili di qualità a prezzi vantaggiosi e di ottenere rendimenti interessanti sui loro investimenti.
Tel: click per vedere | Mail: click per vedere | Web: WWW.22REB.COM