Annuncio inserito da:   RE/MAX Eagle

vendita - appartamento - via nazionale adriatica 89, Roseto degli Abruzzi (TE)

Zona: non indicata
Rif. P2479222
314.000€
  • 110  mq
  • locali
  • C. E. Non indicata 
vedi sulla mappa

dettagli

Inserito: 1 giorno fa
  • interno immobile
    • Tipo: appartamento
    • Stato: non indicato
    • Superficie: 110 mq
    • Locali: 4
    • Bagni: 2
    • Tipo cucina: non indicato
    • Riscaldamento: autonomo
    • Tipo riscaldamento: a pavimento
    • Clase energetica: non indicato
    • IPE: non indicata
  • esterno immobile
    • Piano: 1 di 2
    • Livelli: non indicato
    • Balconi: 1
    • Box: nessuno
    • Giardino: non presente
    • Pannelli solari: non indicato
  • altre informazioni
    • Categoria: Residenziale
    • Anno construzione: 2025
    • Tipo proprietà: non indicato
    • Stato al rogito: non indicato
    • Arredato: no
    • Spese cond./gen.: n.i.
    • Permuta: non indicato
caratteristiche
  • presente
  • non presente
  • info mancanti
  • ascensore
  • terrazzo
  • condizionatore
  • zanzariere
  • cantina
  • soffitta
  • piscina interrata
  • imp. satellitare
  • cablato/lan
  • imp. allarme
  • adatto diversamente abili

descrizione

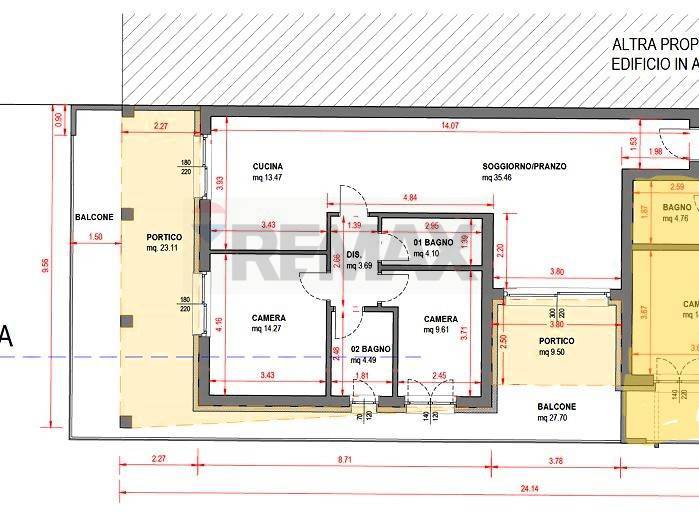
In posizione centralissima, di fronte la chiesa parrocchiale di Cologna spiaggia, proponiamo in vendita appartamento al piano primo in corso di costruzione con consegna 2026. I circa 110mq offrono un grande salotto e una spaziosa zona cucina in open space, un disimpegno, due camere e due bagni. Un grande spazio esterno di circa 60Mq con portico, balcone perimetrale e secondo terrazzo vivibile nella zona living completa l'appartamento. Possibilità di acquistare, separatamente, cantina e posto auto nel garage condominiale al piano seminterrato. Classe energetica A++ con impianto fotovoltaico e colonnine per la ricarica elettrica dei veicoli. Mare raggiungibile comodamente a piedi in pochi minuti.

Le planimetrie inserite nell'annuncio sono solo dimostrative in quanto potrebbero subire delle variazioni in corso d'opera.

PREZZO ESCLUSO IVA COME DI LEGGE ( 4% O 10%)

vedi l'annuncio sulla mappa

Indirizzo di questo annuncio: via nazionale adriatica 89 , Roseto degli Abruzzi (TE)

annunci simili per te

Rif. annuncio P2479222
nome agenzia

RE/MAX Eagle

contatta l'utente

L'utente non ha inserito alcuna descizione


Ci trovi qui:
Corso Federico II, 42, 67100 L'Aquila (AQ)

Tel: click per vedere | Mail: click per vedere | Web: www.remax.it/eagle