Annuncio inserito da:   Studio Ripamonti

vendita - appartamento - Via Roma, Lecco

Zona: non indicata
Rif.
370.000€
  • 120  mq
  • locali
  • C. E.
vedi sulla mappa

dettagli

Inserito: 11 giorni fa
  • interno immobile
    • Tipo: appartamento
    • Stato: Ottimo
    • Superficie: 120 mq
    • Locali: 3
    • Bagni: 2
    • Tipo cucina: abitabile
    • Riscaldamento: autonomo
    • Tipo riscaldamento: non indicato
    • Clase energetica: B
    • IPE: 100 kwh/KW annui
  • esterno immobile
    • Piano: non indicato di 3
    • Livelli: non indicato
    • Balconi: nessuno
    • Box: non indicato
    • Giardino: non indicato
    • Pannelli solari: non indicato
  • altre informazioni
    • Categoria: Residenziale
    • Anno construzione: 2000
    • Tipo proprietà: non indicato
    • Stato al rogito: non indicato
    • Arredato: non indicato
    • Spese cond./gen.: n.i.
    • Permuta: non indicato
caratteristiche
  • presente
  • non presente
  • info mancanti
  • ascensore
  • terrazzo
  • condizionatore
  • zanzariere
  • cantina
  • soffitta
  • piscina interrata
  • imp. satellitare
  • cablato/lan
  • imp. allarme
  • adatto diversamente abili

descrizione

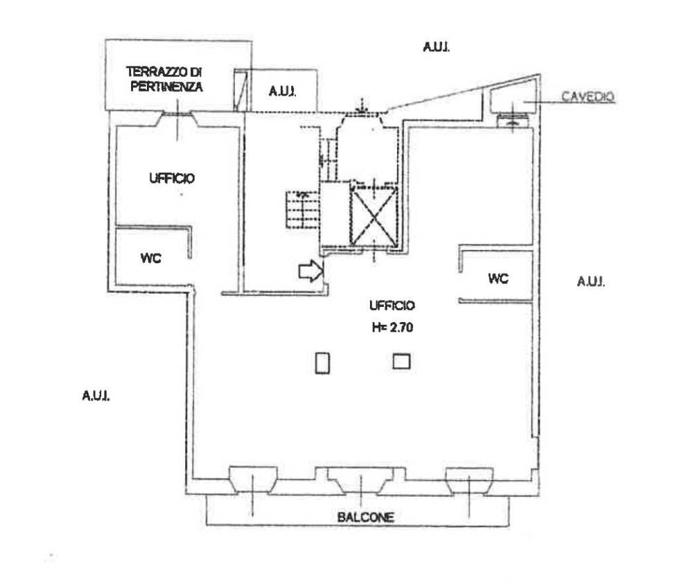
TRILOCALE A LECCO. nIn complesso residenziale ristrutturato, attualmente accatastato come ufficio sarà oggetto di un cambio di destinazione d'uso in appartamento a cura e spese della parte veditrice. nE' ideale per la realizzazione di un prestigioso appartamento nel cuore dell'isola pedonale, la cui collocazione urbanistica permette il collegamento alla stazione ferroviaria della città senza utilizzare autovetture o mezzi pubblici. nFruisce di ampi parcheggi e autosilos cittadini a pochi passi. nCon un ottimo rapporto qualità prezzo, rappresenta anche una buona opportunità di investimento anche per la locazione di prestigio. nnCOMPOSIZIONE:nPosto al piano primo servito da ascensore, si compone di ingresso, ampio locale open space, tre locali, due bagni, terrazzo retrostante e balcone affacciato sulla centralissima via Roma. nnSUPERFICIE:nSviluppa una superficie commerciale di circa Mq. 120nnFINITURE:nRealizzato in signorile contesto ristrutturato negli anni 2000, è stato ultimato con finiture extra capitolato e materiali idonei alla location, con cura in ogni piccolo particolare. nBeneficia di una modularità anche per la distribuzione degli spazi. n nARREDAMENTO:nViene proposto NON Arredaton nDISPONIBILITA':nA Partire da Marzo 2026. nnRISCALDAMENTO E CLIMATIZZAZIONE:nRiscaldamento e raffrescamento autonomo con caldaia turbo esterna e pompa di calore radiatori. nClasse energetica B, indice di prestazione energetica 100.29. nnRif. 109 n nPer la tutela della Privacy, in alcuni casi su esplicita richiesta del venditore, gli indirizzi sono indicativi. nPer informazioni chiama subito Ufficio 0341.353.650. Cell. 335.840.1538. n - Maggiori Dettagli: Balcone, Porta Blindata, Cucina Abitabile, Animali Domestici , Centro Storico, Terrazzo Panoramico, Fermata Bus

vedi l'annuncio sulla mappa

Indirizzo di questo annuncio: Via Roma , Lecco

annunci simili per te

Rif. annuncio Rif. 109
nome agenzia

Studio Ripamonti

contatta l'utente

L'utente non ha inserito alcuna descizione


Ci trovi qui:
Corso Promessi Sposi civ. 23F, 23900 Lecco (LC)

Tel: click per vedere | Cell: click per vedere | Mail: click per vedere | Web: https://www.immobiliripamonti.it