Annuncio inserito da:   Vimmobiliare di Verlato Mauro

vendita - porzione di casa - Via Paluselli 9, Agugliaro (VI)

Zona: non indicata
Rif. GD2
90.000€
  • 322  mq
  • locali
  • C. E. in fase di richiesta 
vedi sulla mappa

dettagli

Inserito: 5 giorni fa
  • interno immobile
    • Tipo: porzione di casa
    • Stato: non indicato
    • Superficie: 322 mq
    • Locali: 9
    • Bagni: 1
    • Tipo cucina: non indicato
    • Riscaldamento: non indicato
    • Tipo riscaldamento: non indicato
    • Clase energetica: in fase di richiesta
    • IPE: 0 kwh/mq annui
  • esterno immobile
    • Piano: non indicato di 2
    • Livelli: non indicato
    • Balconi: nessuno
    • Box: non indicato
    • Giardino: privato
    • Pannelli solari: non indicato
  • altre informazioni
    • Categoria: Residenziale
    • Anno construzione: non indicato
    • Tipo proprietà: non indicato
    • Stato al rogito: non indicato
    • Arredato: no
    • Spese cond./gen.: n.i. /mese
    • Permuta: non indicato
caratteristiche
  • presente
  • non presente
  • info mancanti
  • ascensore
  • terrazzo
  • condizionatore
  • zanzariere
  • cantina
  • soffitta
  • piscina interrata
  • imp. satellitare
  • cablato/lan
  • imp. allarme
  • adatto diversamente abili

descrizione

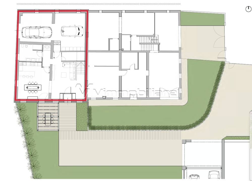
AGUGLIARO: in aperta zona di campagna ma comoda ai collegamenti stradali, casa affiancata di testa di 322 mq comm. su due livelli dalle grandi dimensioni con ampia corte e giardino privato per complessivi 1335 mq. Ampio ingresso sul soggiorno, grande cucina abitabile, quattro camere grandi, bagno, due ripostigli, e ampio deposito/garage. Da ristrutturare, ad eccezione del tetto e grondaie. Classe in fase di valutazione. Da vedere. Euro 90.000.

vedi l'annuncio sulla mappa

Indirizzo di questo annuncio: Via Paluselli 9 , Agugliaro (VI)

annunci simili per te

Rif. annuncio GD2
nome agenzia

Vimmobiliare di Verlato Mauro

contatta l'utente

L'utente non ha inserito alcuna descizione


Ci trovi qui:
Via Masotto 6/8, 36025 Noventa Vicentina (VI)

Tel: click per vedere | Mail: click per vedere | Web: http://www.vimmobiliare.it