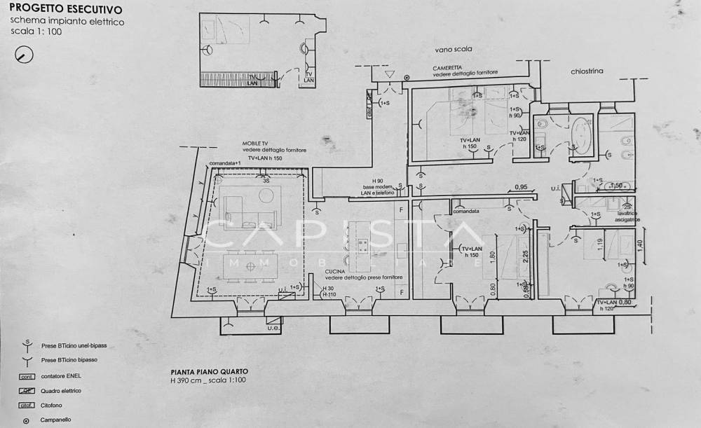
Ad Ortona, in via P. Rapino, allinterno del prestigioso e storico Palazzo Bernabeo, proponiamo in vendita un ampio appartamento di 148 mq, situato al quarto piano (senza ascensore).
Limmobile, molto luminoso e con spazi generosi, è ideale sia come residenza principale sia come investimento per locazioni turistiche. La proprietà è già predisposta per essere trasformata in casa vacanze o affittacamere, grazie alla recente demolizione interna che consente una totale personalizzazione degli spazi.
Nel prezzo di vendita sono compresi i materiali per le finiture, già acquistati e disponibili in loco.
Prezzo richiesto: 105.000
Contattaci subito per maggiori informazioni o per prenotare una visita!
L'utente non ha inserito alcuna descizione
Ci trovi qui:
Corso Vittorio Emanuele II n. 101, 66026 Ortona (CH)
Web: https://www.immobiliarecapista.it/