Annuncio inserito da:   DOMY ONLINE S.R.L.

vendita - appartamento - Via Paleologo 54, Altare (SV)

Zona: non indicata
Rif. SV113/25LU-0104-26-1430
43.220€
  • 199  mq
  • locali
  • C. E.
vedi sulla mappa

dettagli

Inserito: 3 giorni fa
  • interno immobile
    • Tipo: appartamento
    • Stato: non indicato
    • Superficie: 199 mq
    • Locali: 7
    • Bagni: 2
    • Tipo cucina: non indicato
    • Riscaldamento: non indicato
    • Tipo riscaldamento: non indicato
    • Clase energetica: G
    • IPE: 0 kwh/mq annui
  • esterno immobile
    • Piano: non indicato di 3
    • Livelli: 2
    • Balconi: 1
    • Box: non indicato
    • Giardino: non indicato
    • Pannelli solari: non indicato
  • altre informazioni
    • Categoria: Residenziale
    • Anno construzione: non indicato
    • Tipo proprietà: non indicato
    • Stato al rogito: non indicato
    • Arredato: no
    • Spese cond./gen.: n.i. /mese
    • Permuta: non indicato
caratteristiche
  • presente
  • non presente
  • info mancanti
  • ascensore
  • terrazzo
  • condizionatore
  • zanzariere
  • cantina
  • soffitta
  • piscina interrata
  • imp. satellitare
  • cablato/lan
  • imp. allarme
  • adatto diversamente abili

descrizione

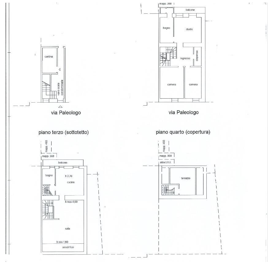
Appartamento ad ALTARE Via Paleologo 54, della superficie commerciale di 198,54 mq per la quota di 1/1 di piena proprietà. L’unità immobiliare si sviluppa come segue: - piano terra, avente altezza interna variabile da mt. 2,00 a mt. 2,83 circa, composto da n° 1 locale ad uso cantina; all’atto del sopralluogo si è rilevato l’accesso ad un locale sottoscala non autorizzato. - piano secondo, avente altezza interna pari a mt. 2,71 circa, composto da disimpegno, n° 3 camere, ripostiglio, bagno, balcone e scala di accesso al piano superiore; - piano terzo, avente altezza interna variabile, composto da soggiorno, cucina, bagno e scala di accesso al terrazzo ubicato al piano quarto; - piano quarto composto da terrazzo/lastrico solare e n° 2 ripostigli. Gli impianti risultano parzialmente realizzati ed all’atto del sopralluogo risultavano non funzionanti. I piani secondo e terzo risultano collegati con scala in legno e ferro, mentre il piano terzo risulta collegato con il piano quarto a mezzo di scala a chiocciola in legno e struttura metallica di sostegno. In generale le condizioni di manutenzione e conservazione e i caratteri di finitura interni dell’unità immobiliare risultano normali. - Il Prezzo visualizzato è la Base d'Asta in quanto l’immobile è oggetto di esecuzione immobiliare venduto tramite Asta Giudiziaria. - L'immobile aggiudicato, viene venduto libero e sgombro da persone cose ed ipoteche nello stato di fatto e di diritto in cui si trova. - Non rappresentiamo il Tribunale, ma lavoriamo nell'esclusivo interesse del potenziale acquirente per garantire un acquisto sicuro. - I consulenti di ASTE ITALIA ti assisteranno in tutte le attività dell'iter giudiziario dalla visita dell'immobile fino alla consegna chiavi. - Contatta il nostro Servizio Clienti , i nostri operatori sono a disposizione per chiarire i molteplici dubbi per partecipare alle ASTE.

vedi l'annuncio sulla mappa

Indirizzo di questo annuncio: Via Paleologo 54 , Altare (SV)

annunci simili per te

Rif. annuncio SV113/25LU-0104-26-1430
nome agenzia

DOMY ONLINE S.R.L.

contatta l'utente

L'utente non ha inserito alcuna descizione


Ci trovi qui:
Via San Lorenzo 5 Int. 41, 16123 Genova (GE)

Tel: click per vedere | Mail: click per vedere | Web: www.asteitalia.online